STREFA DLA KOMORNIKÓW SĄDOWYCH

Szczegóły licytacji

Komornik Sądowy

przy Sądzie Rejonowym w Jeleniej Górze

Robert Dudek

Kancelaria Komornicza, Mickiewicza 16/1B, Jelenia Góra,  58-500 Jelenia Góra

tel. 756455550 / fax. 756455550

Sygnatura: KM 3048/22




OBWIESZCZENIE O PIERWSZEJ LICYTACJI NIERUCHOMOŚCI

Komornik Sądowy przy Sądzie Rejonowym w Jeleniej Górze Robert Dudek na podstawie art. 953 kpc podaje do publicznej wiadomości, że w dniu 27-11-2025 o godz. 14:00 w budynku Sądu Rejonowego w Jeleniej Górze z siedzibą przy Mickiewicza 21, 58-500 Jelenia Góra, sala 118,  odbędzie się pierwsza licytacja

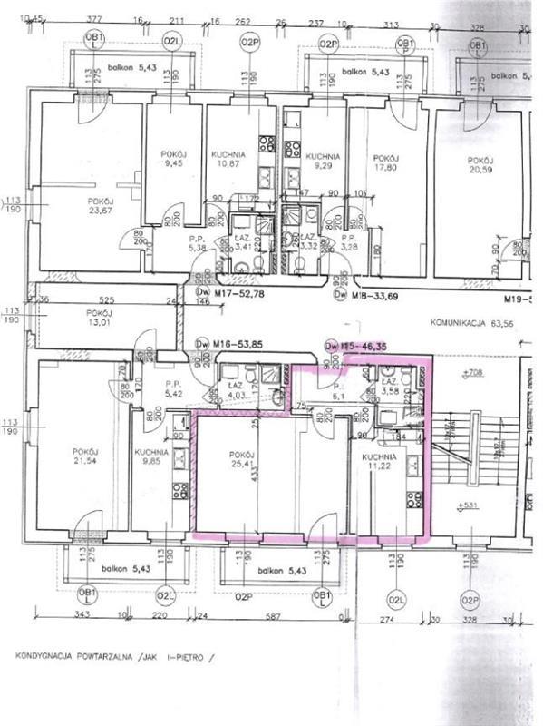
lokalu mieszkalnego, którego  właścicielem jest Stelmaszak Justyna położonego pod adresem: Kadetów 5/15, 58-500 Jelenia Góra, dla którego SĄD REJONOWY JELENIA GÓRA VI WYDZIAŁ KSIĄG WIECZYSTYCH prowadzi księgę wieczystą o numerze JG1J/00086064/0.

Suma oszacowania wynosi 231 000,00 zł, zaś cena wywołania jest równa 3/4 sumy oszacowania i wynosi 173 250,00 zł.  Licytant przystępujący do przetargu powinien złożyć rękojmię w wysokości jednej dziesiątej sumy oszacowania, to jest kwotę 23 100,00 zł. Na dzień przed licytacją kwota wadium musi być uznana na rachunku komornika:  Bank Millennium  59 1160 2202 0000 0001 5747 5944.

Zgodnie z przepisem art. 976 § 1 kpc w przetargu nie mogą uczestniczyć: dłużnik, komornik, ich małżonkowie, dzieci, rodzice i rodzeństwo oraz osoby obecne na licytacji w charakterze urzędowym, licytant, który nie wykonał warunków poprzedniej licytacji, osoby, które mogą nabyć nieruchomość tylko za zezwoleniem organu państwowego, a zezwolenia tego nie przedstawiły.

Nieruchomość tą można oglądać w ciągu dwóch tygodni przed licytacją (po uzgodnieniu terminu z komornikiem), zaś operat szacunkowy tej nieruchomości na trzy dni przed licytacją znajduje się do wglądu w kancelarii komornika (dni przyjęć we wtorki: 10-16 i czwartki: 10-14), a po tym terminie operat zostanie przekazany do Sądu Rejonowego w Jeleniej Górze Wydział I Cywilny.

Prawa osób trzecich nie będą przeszkodą do przeprowadzenia licytacji i przysądzenia własności na rzecz nabywcy bez zastrzeżeń, jeżeli osoby te przed rozpoczęciem licytacji nie złożą dowodu, iż wniosły powództwo o zwolnienie nieruchomości lub przedmiotów razem z nią zajętych od egzekucji i uzyskały w tym zakresie orzeczenie wstrzymujące egzekucję.

Użytkowanie, służebności i prawa dożywotnika, jeżeli nie są ujawnione w księdze wieczystej lub przez złożenie dokumentu do zbioru dokumentów i nie zostaną zgłoszone najpóźniej na trzy dni przed rozpoczęciem licytacji, nie będą uwzględniane w dalszym toku egzekucji i wygasną z chwilą uprawomocnienia się postanowienia o przysądzaniu własności.

Komornik Sądowy

Robert Dudek



Kategoriamieszkania

Powrót