Szczegóły licytacji
Komornik Sądowy
przy Sądzie Rejonowym w Piotrkowie Trybunalskim
Agnieszka Różycka
Kancelaria Komornicza, al. 3 Maja 2/307, Piotrków Trybunalski, 97-300 Piotrków Trybunalski
tel. (44) 649-74-83 / fax.
Sygnatura: Km 438/24
OBWIESZCZENIE O DRUGIEJ LICYTACJI NIERUCHOMOŚCI
Komornik Sądowy przy Sądzie Rejonowym w Piotrkowie Trybunalskim Agnieszka Różycka Kancelaria Komornicza nr VII w Piotrkowie Trybunalskim na podstawie art. 953 ustawy z dnia 17 listopada 1964 r. Kodeks postępowania cywilnego (dalej: kpc) podaje do publicznej wiadomości, że w sprawie Km 438/24 w dniu 08-12-2025 o godz. 11:00 w budynku Sądu Rejonowego w Piotrkowie Trybunalskim z siedzibą przy ul. Juliusza Słowackiego 5, 97-300 Piotrków Trybunalski, sala II, odbędzie się druga licytacja:
- lokalu mieszkalnego, którego właścicielem jest - położonego przy ul. Juliusza Słowackiego 26, 97-300 Piotrków Trybunalski, dla którego Sąd Rejonowy w Piotrkowie Trybunalskim Wydział Ksiąg Wieczystych (adres: ul. ul. Juliusza Słowackiego 5, Piotrków Trybunalski, 97-300 Piotrków Trybunalski) prowadzi księgę wieczystą o numerze PT1P/00001422/7.
Opis nieruchomości:
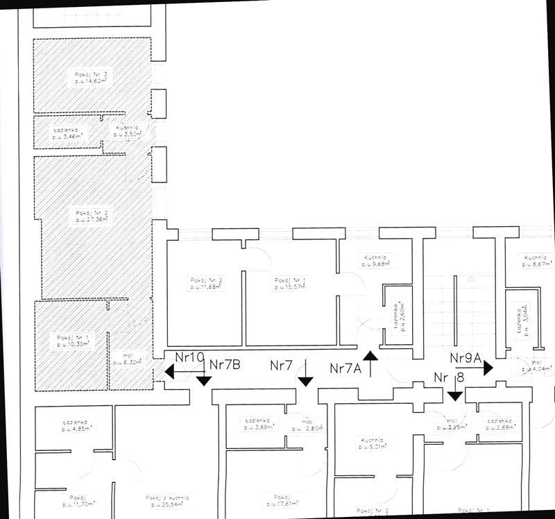
lokal mieszkalny nr 6 o powierzchni użytkowej 81,57 m2, usytuowany na I piętrze, składający się z holu, pokoju nr 1, pokoju nr 2, korytarza, łazienki, wc i kuchni oraz komórki nr 6/1 i 6/2 o łącznej powierzchni użytkowej 8,54 m2, wraz z udziałem 9011/232482 prawa własności działki ozn. nr 147, wartość pozostałych części wspólnych budynków w udziale 9011/232482,
Suma oszacowania wynosi 265 000,00 zł, zaś cena wywołania jest równa 2/3 sumy oszacowania i wynosi 176 666,67 zł. Licytant przystępujący do przetargu powinien złożyć rękojmię w wysokości jednej dziesiątej sumy oszacowania, to jest kwotę 26 500,00 zł.
W ciągu dwóch tygodni przed licytacją wolno oglądać wyżej wymienioną nieruchomość w dni powszednie od godz. 10:00 do godz. 15:00. Protokół opisu i oszacowania można przeglądać w siedzibie Sądu Rejonowego w Piotrkowie Trybunalskim ul. ul. Juliusza Słowackiego5, 97-300 Piotrków Trybunalski.
Zgodnie z art. 962 kpc licytant przystępujący do przetargu powinien złożyć rękojmię najpóźniej w dniu poprzedzającym przetarg.
- lokalu mieszkalnego, którego właścicielem jest - położonego przy ul. Juliusza Słowackiego 26, 97-300 Piotrków Trybunalski, dla którego Sąd Rejonowy w Piotrkowie Trybunalskim Wydział Ksiąg Wieczystych (adres: ul. ul. Juliusza Słowackiego 5, Piotrków Trybunalski, 97-300 Piotrków Trybunalski) prowadzi księgę wieczystą o numerze PT1P/00001422/7.
Opis nieruchomości:
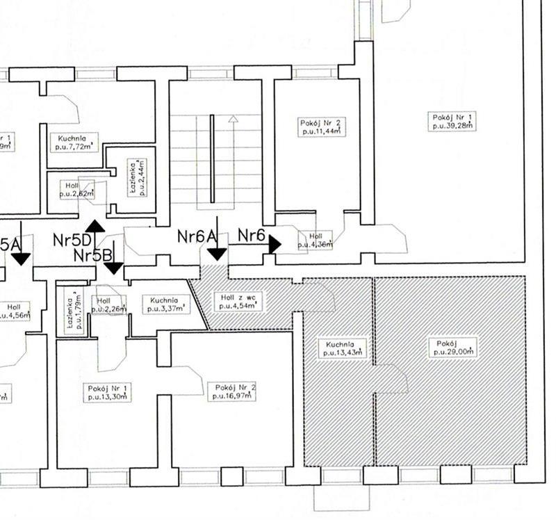
lokal mieszkalny nr 6 A o powierzchni użytkowej 46,97 m2, usytuowany na I piętrze, składający się z holu, pokoju, kuchni oraz piwnicy nr 6 A o powierzchni użytkowej 15,64 m2, wraz z udziałem 6261/232482 prawa własności działki ozn. nr 147, wartość pozostałych części wspólnych budynków w udziale 6261/232482,
Suma oszacowania wynosi 162 400,00 zł, zaś cena wywołania jest równa 2/3 sumy oszacowania i wynosi 108 266,67 zł. Licytant przystępujący do przetargu powinien złożyć rękojmię w wysokości jednej dziesiątej sumy oszacowania, to jest kwotę 16 240,00 zł.
W ciągu dwóch tygodni przed licytacją wolno oglądać wyżej wymienioną nieruchomość w dni powszednie od godz. 10:00 do godz. 15:00. Protokół opisu i oszacowania można przeglądać w siedzibie Sądu Rejonowego w Piotrkowie Trybunalskim ul. ul. Juliusza Słowackiego5, 97-300 Piotrków Trybunalski.
Zgodnie z art. 962 kpc licytant przystępujący do przetargu powinien złożyć rękojmię najpóźniej w dniu poprzedzającym przetarg.
- lokalu mieszkalnego, którego właścicielem jest - położonego przy ul. Juliusza Słowackiego 26, 97-300 Piotrków Trybunalski, dla którego Sąd Rejonowy w Piotrkowie Trybunalskim Wydział Ksiąg Wieczystych (adres: ul. ul. Juliusza Słowackiego 5, Piotrków Trybunalski, 97-300 Piotrków Trybunalski) prowadzi księgę wieczystą o numerze PT1P/00001422/7.
Opis nieruchomości:
lokal mieszkalny nr 10 o powierzchni użytkowej 65,56 m2, usytuowany na II piętrze, składający się z holu, pokoju nr 1, pokoju nr 2, pokoju nr 3, łazienki, kuchni oraz piwnicy nr 10 o powierzchni użytkowej 15,02 m2, wraz z udziałem 8058/232482 prawa własności działki ozn. nr 147, wartość pozostałych części wspólnych budynków w udziale 8058/232482,
Suma oszacowania wynosi 214 700,00 zł, zaś cena wywołania jest równa 2/3 sumy oszacowania i wynosi 143 133,33 zł. Licytant przystępujący do przetargu powinien złożyć rękojmię w wysokości jednej dziesiątej sumy oszacowania, to jest kwotę 21 470,00 zł.
W ciągu dwóch tygodni przed licytacją wolno oglądać wyżej wymienioną nieruchomość w dni powszednie od godz. 10:00 do godz. 15:00. Protokół opisu i oszacowania można przeglądać w siedzibie Sądu Rejonowego w Piotrkowie Trybunalskim ul. ul. Juliusza Słowackiego5, 97-300 Piotrków Trybunalski.
Zgodnie z art. 962 kpc licytant przystępujący do przetargu powinien złożyć rękojmię najpóźniej w dniu poprzedzającym przetarg.
- lokalu mieszkalnego, którego właścicielem jest - położonego przy ul. Juliusza Słowackiego 26, 97-300 Piotrków Trybunalski, dla którego Sąd Rejonowy w Piotrkowie Trybunalskim Wydział Ksiąg Wieczystych (adres: ul. ul. Juliusza Słowackiego 5, Piotrków Trybunalski, 97-300 Piotrków Trybunalski) prowadzi księgę wieczystą o numerze PT1P/00001422/7.
Opis nieruchomości:
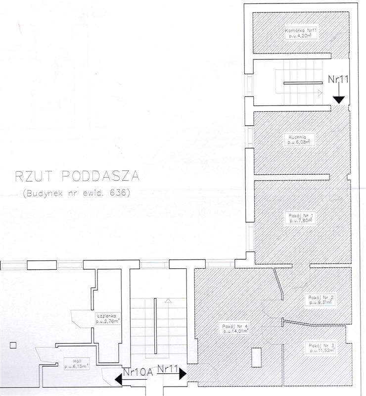
lokal mieszkalny nr 10 A o powierzchni użytkowej 64,49 m2, usytuowany na poddaszu, składający się z salonu z kuchnią, pokoju nr 1, pokoju nr 2, pokoju nr 3, łazienki, holu, garderoby oraz komórki nr 10 A o powierzchni użytkowej 1,82 m2, wraz z udziałem 6631/232482 prawa własności działki ozn. nr 147, wartość pozostałych części wspólnych budynków w udziale 6631/232482,
Suma oszacowania wynosi 231 300,00 zł, zaś cena wywołania jest równa 2/3 sumy oszacowania i wynosi 154 200,00 zł. Licytant przystępujący do przetargu powinien złożyć rękojmię w wysokości jednej dziesiątej sumy oszacowania, to jest kwotę 23 130,00 zł.
W ciągu dwóch tygodni przed licytacją wolno oglądać wyżej wymienioną nieruchomość w dni powszednie od godz. 10:00 do godz. 15:00. Protokół opisu i oszacowania można przeglądać w siedzibie Sądu Rejonowego w Piotrkowie Trybunalskim ul. ul. Juliusza Słowackiego5, 97-300 Piotrków Trybunalski.
Zgodnie z art. 962 kpc licytant przystępujący do przetargu powinien złożyć rękojmię najpóźniej w dniu poprzedzającym przetarg.
- lokalu mieszkalnego, którego właścicielem jest - położonego przy ul. Juliusza Słowackiego 26, 97-300 Piotrków Trybunalski, dla którego Sąd Rejonowy w Piotrkowie Trybunalskim Wydział Ksiąg Wieczystych (adres: ul. ul. Juliusza Słowackiego 5, Piotrków Trybunalski, 97-300 Piotrków Trybunalski) prowadzi księgę wieczystą o numerze PT1P/00001422/7.
Opis nieruchomości:
lokal mieszkalny nr 11 o powierzchni użytkowej 48,72 m2, usytuowany na poddaszu, składający się z kuchni, pokoju nr 1, pokoju nr 2, pokoju nr 3, pokoju nr 4 oraz komórki nr 11 o powierzchni użytkowej 4,20 m2, wraz z udziałem 5292/232482 prawa własności działki ozn. nr 147, wartość pozostałych części wspólnych budynków w udziale 5292/232482,
Suma oszacowania wynosi 128 100,00 zł, zaś cena wywołania jest równa 2/3 sumy oszacowania i wynosi 85 400,00 zł. Licytant przystępujący do przetargu powinien złożyć rękojmię w wysokości jednej dziesiątej sumy oszacowania, to jest kwotę 12 810,00 zł.
W ciągu dwóch tygodni przed licytacją wolno oglądać wyżej wymienioną nieruchomość w dni powszednie od godz. 10:00 do godz. 15:00. Protokół opisu i oszacowania można przeglądać w siedzibie Sądu Rejonowego w Piotrkowie Trybunalskim ul. ul. Juliusza Słowackiego5, 97-300 Piotrków Trybunalski.
Zgodnie z art. 962 kpc licytant przystępujący do przetargu powinien złożyć rękojmię najpóźniej w dniu poprzedzającym przetarg.
- lokalu mieszkalnego, którego właścicielem jest - położonego przy ul. Juliusza Słowackiego 26, 97-300 Piotrków Trybunalski, dla którego Sąd Rejonowy w Piotrkowie Trybunalskim Wydział Ksiąg Wieczystych (adres: ul. ul. Juliusza Słowackiego 5, Piotrków Trybunalski, 97-300 Piotrków Trybunalski) prowadzi księgę wieczystą o numerze PT1P/00001422/7.
Opis nieruchomości:
lokal mieszkalny nr 24 o powierzchni użytkowej 77,73 m2, usytuowany na parterze, składający się z przedpokoju, wc, kuchni, pokoju nr 1, pokoju nr 2, pokoju nr 3, oraz piwnicy nr 24 o powierzchni użytkowej 2,95 m2, wraz z udziałem 8068/232482 prawa własności działki ozn. nr 147, wartość pozostałych części wspólnych budynków w udziale 8068/232482,
Suma oszacowania wynosi 240 500,00 zł, zaś cena wywołania jest równa 2/3 sumy oszacowania i wynosi 160 333,33 zł. Licytant przystępujący do przetargu powinien złożyć rękojmię w wysokości jednej dziesiątej sumy oszacowania, to jest kwotę 24 050,00 zł.
W ciągu dwóch tygodni przed licytacją wolno oglądać wyżej wymienioną nieruchomość w dni powszednie od godz. 10:00 do godz. 15:00. Protokół opisu i oszacowania można przeglądać w siedzibie Sądu Rejonowego w Piotrkowie Trybunalskim ul. ul. Juliusza Słowackiego5, 97-300 Piotrków Trybunalski.
Zgodnie z art. 962 kpc licytant przystępujący do przetargu powinien złożyć rękojmię najpóźniej w dniu poprzedzającym przetarg.
- lokalu mieszkalnego, którego właścicielem jest - położonego przy ul. Juliusza Słowackiego 26, 97-300 Piotrków Trybunalski, dla którego Sąd Rejonowy w Piotrkowie Trybunalskim Wydział Ksiąg Wieczystych (adres: ul. ul. Juliusza Słowackiego 5, Piotrków Trybunalski, 97-300 Piotrków Trybunalski) prowadzi księgę wieczystą o numerze PT1P/00001422/7.
Opis nieruchomości:
lokal mieszkalny nr 26 o powierzchni użytkowej 84,18 m2, usytuowany na I piętrze, składający się z przedpokoju, wc, kuchni, pokoju nr 1, pokoju nr 2, pokoju nr 3, oraz piwnicy nr 26 o powierzchni użytkowej 9,72 m2, wraz z udziałem 9390/232482 prawa własności działki ozn. nr 147, wartość pozostałych części wspólnych budynków w udziale 9390/232482,
Suma oszacowania wynosi 260 400,00 zł, zaś cena wywołania jest równa 2/3 sumy oszacowania i wynosi 173 600,00 zł. Licytant przystępujący do przetargu powinien złożyć rękojmię w wysokości jednej dziesiątej sumy oszacowania, to jest kwotę 26 040,00 zł.
W ciągu dwóch tygodni przed licytacją wolno oglądać wyżej wymienioną nieruchomość w dni powszednie od godz. 10:00 do godz. 15:00. Protokół opisu i oszacowania można przeglądać w siedzibie Sądu Rejonowego w Piotrkowie Trybunalskim ul. ul. Juliusza Słowackiego5, 97-300 Piotrków Trybunalski.
Zgodnie z art. 962 kpc licytant przystępujący do przetargu powinien złożyć rękojmię najpóźniej w dniu poprzedzającym przetarg.
- lokalu mieszkalnego, którego właścicielem jest - położonego przy ul. Juliusza Słowackiego 26, 97-300 Piotrków Trybunalski, dla którego Sąd Rejonowy w Piotrkowie Trybunalskim Wydział Ksiąg Wieczystych (adres: ul. ul. Juliusza Słowackiego 5, Piotrków Trybunalski, 97-300 Piotrków Trybunalski) prowadzi księgę wieczystą o numerze PT1P/00001422/7.
Opis nieruchomości:
lokal mieszkalny nr 33 o powierzchni użytkowej 29,36 m2, usytuowany w budynku drewnianym wolnostojącym na parterze, składający się pokoju, kuchni, wc oraz piwnicy nr 33 o powierzchni użytkowej 4,80 m2, wraz z udziałem 3416/232482 prawa własności działki ozn. nr 147, wartość pozostałych części wspólnych budynków w udziale 3416/232482,
Suma oszacowania wynosi 75 600,00 zł, zaś cena wywołania jest równa 2/3 sumy oszacowania i wynosi 50 400,00 zł. Licytant przystępujący do przetargu powinien złożyć rękojmię w wysokości jednej dziesiątej sumy oszacowania, to jest kwotę 7 560,00 zł.
W ciągu dwóch tygodni przed licytacją wolno oglądać wyżej wymienioną nieruchomość w dni powszednie od godz. 10:00 do godz. 15:00. Protokół opisu i oszacowania można przeglądać w siedzibie Sądu Rejonowego w Piotrkowie Trybunalskim ul. ul. Juliusza Słowackiego5, 97-300 Piotrków Trybunalski.
Zgodnie z art. 962 kpc licytant przystępujący do przetargu powinien złożyć rękojmię najpóźniej w dniu poprzedzającym przetarg.
- lokalu mieszkalnego, którego właścicielem jest - położonego przy ul. Juliusza Słowackiego 26, 97-300 Piotrków Trybunalski, dla którego Sąd Rejonowy w Piotrkowie Trybunalskim Wydział Ksiąg Wieczystych (adres: ul. ul. Juliusza Słowackiego 5, Piotrków Trybunalski, 97-300 Piotrków Trybunalski) prowadzi księgę wieczystą o numerze PT1P/00001422/7.
Opis nieruchomości:
lokal mieszkalny nr 33 A o powierzchni użytkowej 48,63 m2, usytuowany w budynku drewnianym wolnostojącym na parterze, składający się z kuchni, wc, pokoju nr 1, pokoju nr 2, pokoju nr 3 oraz komórki nr 33 A o powierzchni użytkowej 2,53 m2, wraz z udziałem 5116/232482 prawa własności działki ozn. nr 147, wartość pozostałych części wspólnych budynków w udziale 5116/232482,
Suma oszacowania wynosi 120 800,00 zł, zaś cena wywołania jest równa 2/3 sumy oszacowania i wynosi 80 533,33 zł. Licytant przystępujący do przetargu powinien złożyć rękojmię w wysokości jednej dziesiątej sumy oszacowania, to jest kwotę 12 080,00 zł.
W ciągu dwóch tygodni przed licytacją wolno oglądać wyżej wymienioną nieruchomość w dni powszednie od godz. 10:00 do godz. 15:00. Protokół opisu i oszacowania można przeglądać w siedzibie Sądu Rejonowego w Piotrkowie Trybunalskim ul. ul. Juliusza Słowackiego5, 97-300 Piotrków Trybunalski.
Zgodnie z art. 962 kpc licytant przystępujący do przetargu powinien złożyć rękojmię najpóźniej w dniu poprzedzającym przetarg.
Rękojmię należy złożyć na konto komornika: bank 92 1020 3916 0000 0902 0078 6749.
Za datę złożenia rękojmi przyjmuje się dzień uznania rachunku bankowego komornika.
Rękojmia może być również złożona w książeczce oszczędnościowej zaopatrzonej w upoważnienie właściciela książeczki do wypłaty całego wkładu stosownie do prawomocnego postanowienia sądu o utracie rękojmi.
Stawienie się jednego licytanta wystarcza do odbycia przetargu.
Prawa osób trzecich nie będą przeszkodą do licytacji i przysądzenia własności na rzecz nabywcy bez zastrzeżeń, jeżeli osoby te przed rozpoczęciem przetargu nie złożą dowodu, iż wniosły powództwo o zwolnienie nieruchomości lub przedmiotów razem z nią zajętych od egzekucji i uzyskały w tym zakresie orzeczenie wstrzymujące egzekucję.
Użytkowanie, służebności i prawa dożywotnika, jeżeli nie są ujawnione w księdze wieczystej lub przez złożenie dokumentu do zbioru dokumentów i nie zostaną zgłoszone najpóźniej na trzy dni przed rozpoczęciem licytacji, nie będą uwzględnione w dalszym toku egzekucji i wygasną z chwilą uprawomocnienia się postanowienia o przysądzeniu własności.
Zgodnie z przepisem art. 976 § 1 kpc w przetargu w przetargu nie mogą uczestniczyć: dłużnik, komornik, ich małżonkowie, dzieci, rodzice i rodzeństwo oraz osoby obecne na licytacji w charakterze urzędowym, licytant, który nie wykonał warunków poprzedniej licytacji, osoby, które mogą nabyć nieruchomość tylko za zezwoleniem organu państwowego, a zezwolenia tego nie przedstawiły.
Komornik Sądowy
Agnieszka Różycka


