Szczegóły licytacji
Komornik Sądowy
przy Sądzie Rejonowym w Piotrkowie Trybunalskim
Agnieszka Różycka
Kancelaria Komornicza, al. 3 Maja 2/307, Piotrków Trybunalski, 97-300 Piotrków Trybunalski
tel. (44) 649-74-83 / fax.
Sygnatura: Km 95/25
OBWIESZCZENIE O PIERWSZEJ LICYTACJI NIERUCHOMOŚCI
Komornik Sądowy przy Sądzie Rejonowym w Piotrkowie Trybunalskim Agnieszka Różycka Kancelaria Komornicza nr VII w Piotrkowie Trybunalskim na podstawie art. 953 ustawy z dnia 17 listopada 1964 r. Kodeks postępowania cywilnego (dalej: kpc) podaje do publicznej wiadomości, że w sprawie Km 95/25 w dniu 16-02-2026 o godz. 10:30 w budynku Sądu Rejonowego w Piotrkowie Trybunalskim z siedzibą przy ul. Juliusza Słowackiego 5, 97-300 Piotrków Trybunalski, sala II, odbędzie się pierwsza licytacja:
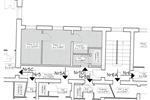
- lokalu mieszkalnego, którego właścicielem jest - położonego przy ul. Juliusza Słowackiego 26, 97-300 Piotrków Trybunalski, dla którego Sąd Rejonowy w Piotrkowie Trybunalskim VI Wydział Ksiąg Wieczystych (adres: ul. Słowackiego 5, Piotrków Trybunalski, 97-300 Piotrków Trybunalski) prowadzi księgę wieczystą o numerze PT1P/00001422/7.
Opis nieruchomości:
lokal mieszkalny nr 5D o powierzchni użytkowej 37,74 m2, usytuowany na I piętrze, składający się z holu, kuchni, łazienki i dwóch pokoi oraz komórki nr 5D o powierzchni użytkowej 11,02 m2, wraz z udziałem 4876/232482 prawa własności działki ozn. nr 147, wartość pozostałych części wspólnych budynków w udziale 4876/232482,
Suma oszacowania wynosi 130 000,00 zł, zaś cena wywołania jest równa 3/4 sumy oszacowania i wynosi 97 500,00 zł. Licytant przystępujący do przetargu powinien złożyć rękojmię w wysokości jednej dziesiątej sumy oszacowania, to jest kwotę 13 000,00 zł.
W ciągu dwóch tygodni przed licytacją wolno oglądać wyżej wymienioną nieruchomość w dni powszednie od godz. 10:00 do godz. 15:00. Protokół opisu i oszacowania można przeglądać w siedzibie Sądu Rejonowego w Piotrkowie Trybunalskim ul. ul. Juliusza Słowackiego5, 97-300 Piotrków Trybunalski.
Zgodnie z art. 962 kpc licytant przystępujący do przetargu powinien złożyć rękojmię najpóźniej w dniu poprzedzającym przetarg.
- lokalu mieszkalnego, którego właścicielem jest - położonego przy ul. Juliusza Słowackiego 26, 97-300 Piotrków Trybunalski, dla którego Sąd Rejonowy w Piotrkowie Trybunalskim VI Wydział Ksiąg Wieczystych (adres: ul. Słowackiego 5, Piotrków Trybunalski, 97-300 Piotrków Trybunalski) prowadzi księgę wieczystą o numerze PT1P/00001422/7.
Opis nieruchomości:
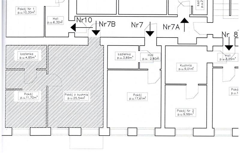
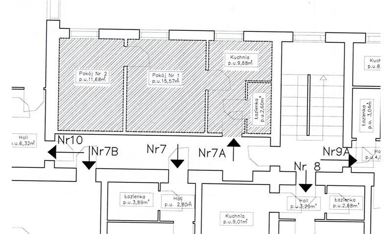
lokal mieszkalny nr 7 o powierzchni użytkowej 24,30 m2, usytuowany na II piętrze, składający się z holu, łazienki i pokoju oraz komórki nr 7 o powierzchni użytkowej 4,80 m2, wraz z udziałem 2910/232482 prawa własności działki ozn. nr 147, wartość pozostałych części wspólnych budynków w udziale 2910/232482,
Suma oszacowania wynosi 84 300,00 zł, zaś cena wywołania jest równa 3/4 sumy oszacowania i wynosi 63 225,00 zł. Licytant przystępujący do przetargu powinien złożyć rękojmię w wysokości jednej dziesiątej sumy oszacowania, to jest kwotę 8 430,00 zł.
W ciągu dwóch tygodni przed licytacją wolno oglądać wyżej wymienioną nieruchomość w dni powszednie od godz. 10:00 do godz. 15:00. Protokół opisu i oszacowania można przeglądać w siedzibie Sądu Rejonowego w Piotrkowie Trybunalskim ul. ul. Juliusza Słowackiego5, 97-300 Piotrków Trybunalski.
Zgodnie z art. 962 kpc licytant przystępujący do przetargu powinien złożyć rękojmię najpóźniej w dniu poprzedzającym przetarg.
- lokalu mieszkalnego, którego właścicielem jest - położonego przy ul. Juliusza Słowackiego 26, 97-300 Piotrków Trybunalski, dla którego Sąd Rejonowy w Piotrkowie Trybunalskim VI Wydział Ksiąg Wieczystych (adres: ul. Słowackiego 5, Piotrków Trybunalski, 97-300 Piotrków Trybunalski) prowadzi księgę wieczystą o numerze PT1P/00001422/7.
Opis nieruchomości:
lokal mieszkalny nr 7A o powierzchni użytkowej 39,53 m2, usytuowany na II piętrze, składający się z kuchni, łazienki i 2 pokoi oraz komórki nr 7A o powierzchni użytkowej 4,08 m2, wraz z udziałem 4361/232482 prawa własności działki ozn. nr 147, wartość pozostałych części wspólnych budynków w udziale 4361/232482,
Suma oszacowania wynosi 133 100,00 zł, zaś cena wywołania jest równa 3/4 sumy oszacowania i wynosi 99 825,00 zł. Licytant przystępujący do przetargu powinien złożyć rękojmię w wysokości jednej dziesiątej sumy oszacowania, to jest kwotę 13 310,00 zł.
W ciągu dwóch tygodni przed licytacją wolno oglądać wyżej wymienioną nieruchomość w dni powszednie od godz. 10:00 do godz. 15:00. Protokół opisu i oszacowania można przeglądać w siedzibie Sądu Rejonowego w Piotrkowie Trybunalskim ul. ul. Juliusza Słowackiego5, 97-300 Piotrków Trybunalski.
Zgodnie z art. 962 kpc licytant przystępujący do przetargu powinien złożyć rękojmię najpóźniej w dniu poprzedzającym przetarg.
- lokalu mieszkalnego, którego właścicielem jest - położonego przy ul. Juliusza Słowackiego 26, 97-300 Piotrków Trybunalski, dla którego Sąd Rejonowy w Piotrkowie Trybunalskim VI Wydział Ksiąg Wieczystych (adres: ul. Słowackiego 5, Piotrków Trybunalski, 97-300 Piotrków Trybunalski) prowadzi księgę wieczystą o numerze PT1P/00001422/7.
Opis nieruchomości:
lokal mieszkalny nr 7B o powierzchni użytkowej 42,09 m2, usytuowany na II piętrze, składający się z pokoju z kuchnią, łazienki i pokoju oraz komórki nr 7B o powierzchni użytkowej 12,74 m2, wraz z udziałem 5483/232482 prawa własności działki ozn. nr 147, wartość pozostałych części wspólnych budynków w udziale 5483/232482,
Suma oszacowania wynosi 141 700,00 zł, zaś cena wywołania jest równa 3/4 sumy oszacowania i wynosi 106 275,00 zł. Licytant przystępujący do przetargu powinien złożyć rękojmię w wysokości jednej dziesiątej sumy oszacowania, to jest kwotę 14 170,00 zł.
W ciągu dwóch tygodni przed licytacją wolno oglądać wyżej wymienioną nieruchomość w dni powszednie od godz. 10:00 do godz. 15:00. Protokół opisu i oszacowania można przeglądać w siedzibie Sądu Rejonowego w Piotrkowie Trybunalskim ul. ul. Juliusza Słowackiego5, 97-300 Piotrków Trybunalski.
Zgodnie z art. 962 kpc licytant przystępujący do przetargu powinien złożyć rękojmię najpóźniej w dniu poprzedzającym przetarg.
- lokalu mieszkalnego, którego właścicielem jest - położonego przy ul. Juliusza Słowackiego 26, 97-300 Piotrków Trybunalski, dla którego Sąd Rejonowy w Piotrkowie Trybunalskim VI Wydział Ksiąg Wieczystych (adres: ul. Słowackiego 5, Piotrków Trybunalski, 97-300 Piotrków Trybunalski) prowadzi księgę wieczystą o numerze PT1P/00001422/7.
Opis nieruchomości:
lokal mieszkalny nr 9 o powierzchni użytkowej 66,18 m2, usytuowany na II piętrze, składający się z kuchni, łazienki i pokoju oraz komórki nr 9/1 o powierzchni użytkowej 2,93 m2, komórki nr 9/2 o powierzchni użytkowej 6,84 m2 i piwnicy nr 9/3 o powierzchni użytkowej 1,14 m2 wraz z udziałem 7709/232482 prawa własności działki ozn. nr 147, wartość pozostałych części wspólnych budynków w udziale 7709/232482,
Suma oszacowania wynosi 205 800,00 zł, zaś cena wywołania jest równa 3/4 sumy oszacowania i wynosi 154 350,00 zł. Licytant przystępujący do przetargu powinien złożyć rękojmię w wysokości jednej dziesiątej sumy oszacowania, to jest kwotę 20 580,00 zł.
W ciągu dwóch tygodni przed licytacją wolno oglądać wyżej wymienioną nieruchomość w dni powszednie od godz. 10:00 do godz. 15:00. Protokół opisu i oszacowania można przeglądać w siedzibie Sądu Rejonowego w Piotrkowie Trybunalskim ul. ul. Juliusza Słowackiego5, 97-300 Piotrków Trybunalski.
Zgodnie z art. 962 kpc licytant przystępujący do przetargu powinien złożyć rękojmię najpóźniej w dniu poprzedzającym przetarg.
Rękojmię należy złożyć na konto komornika: bank 92 1020 3916 0000 0902 0078 6749.
Za datę złożenia rękojmi przyjmuje się dzień uznania rachunku bankowego komornika.
Rękojmia może być również złożona w książeczce oszczędnościowej zaopatrzonej w upoważnienie właściciela książeczki do wypłaty całego wkładu stosownie do prawomocnego postanowienia sądu o utracie rękojmi.
Stawienie się jednego licytanta wystarcza do odbycia przetargu.
Prawa osób trzecich nie będą przeszkodą do licytacji i przysądzenia własności na rzecz nabywcy bez zastrzeżeń, jeżeli osoby te przed rozpoczęciem przetargu nie złożą dowodu, iż wniosły powództwo o zwolnienie nieruchomości lub przedmiotów razem z nią zajętych od egzekucji i uzyskały w tym zakresie orzeczenie wstrzymujące egzekucję.
Użytkowanie, służebności i prawa dożywotnika, jeżeli nie są ujawnione w księdze wieczystej lub przez złożenie dokumentu do zbioru dokumentów i nie zostaną zgłoszone najpóźniej na trzy dni przed rozpoczęciem licytacji, nie będą uwzględnione w dalszym toku egzekucji i wygasną z chwilą uprawomocnienia się postanowienia o przysądzeniu własności.
Zgodnie z przepisem art. 976 § 1 kpc w przetargu w przetargu nie mogą uczestniczyć: dłużnik, komornik, ich małżonkowie, dzieci, rodzice i rodzeństwo oraz osoby obecne na licytacji w charakterze urzędowym, licytant, który nie wykonał warunków poprzedniej licytacji, osoby, które mogą nabyć nieruchomość tylko za zezwoleniem organu państwowego, a zezwolenia tego nie przedstawiły.
Komornik Sądowy
Agnieszka Różycka


