Szczegóły licytacji
Komornik Sądowy
przy Sądzie Rejonowym dla m. st. Warszawy w Warszawie
Piotr Szewc
Kancelaria Komornicza nr XVII w Warszawie
02-261 Warszawa ul. Robotnicza 22
Warszawa, dn. 01.10.2025r.
Sygn. akt: KM 189/22, KM 623/23, KM 191/22
sygn. akt: I 1 Co 1099/24
OBWIESZCZENIE O PIERWSZEJ LICYTACJI NIERUCHOMOŚCI W TRYBIE LICYTACJI ELEKTRONICZNEJ
Komornik Sądowy przy Sądzie Rejonowym dla m. st. Warszawy w Warszawie Piotr Szewc na podstawie przepisu art. 953 w zw. z art.986 (z ind. 1-11) Kodeksu postępowania cywilnego podaje do publicznej wiadomości, że w dniach:
od 22.10.2025r. od godz. 10:00 (rozpoczęcie przetargu), do: 29.10.2025r. do godz.10:00 (zakończenie przetargu)
odbędzie się pierwsza elektroniczna licytacja nieruchomości - lokalu mieszkalnego stanowiącego odrębną nieruchomość wraz z prawami związanymi, dla którego Sąd Rejonowy dla Warszawy Mokotowa w W-wie XIII Wydział Ksiąg Wieczystych prowadzi księgę wieczystą o numerze KW WA1M/00319687/2, stanowiącego w udziale 6/8 części własność dłużnika (NUMER UDZIAŁU W PRAWIE: 1) - położonej pod adresem: 02-495 Warszawa, ul. 1 Maja 11/25.
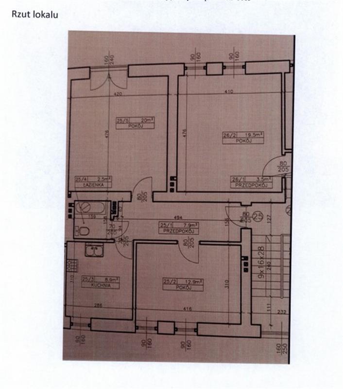
Przedmiotem licytacji jest udział 6/8 w nieruchomości lokalowej o charakterze mieszkalnym nr 25 wraz z udziałem w nieruchomości wspólnej, którą stanowi prawo własności gruntu oraz części budynku i urządzenia, które nie służą wyłącznie do użytku właścicieli lokali, położona w budynku mieszkalnym wielorodzinnym w Warszawie, dzielnicy Ursus, przy ul. 1 Maja 11. Lokal mieszkalny o powierzchni użytkowej 51,30 m2 położony jest na 3 piętrze. Składa się z 2 pokoi, kuchni, przedpokoju i łazienki z WC. Dla przedmiotowego lokalu Sąd Rejonowy dla Warszawy Mokotowa w W-wie XIII Wydział Ksiąg Wieczystych prowadzi księgę wieczystą o numerze KW WA1M/00319687/2.
Budynek mieszkalny wybudowany w 1951 roku posiada 3 kondygnacje naziemne oraz 1 podziemną oraz nieużytkowy strych. Budynek w całości podpiwniczony.Stan budynku dobry. Budynek położony jest na działce ewidencyjnej nr 17 obręb 2-11-13, dla której Sąd Rejonowy dla Warszawy Mokotowa w W-wie XIII Wydział Ksiąg Wieczystych prowadzi księgę wieczystą o numerze KW WA1M/00060431/2, o powierzchni 601 m2. Właścicielem gruntu jest m. st. Warszawa oraz właściciele wyodrębnionych lokali.
Suma oszacowania udziału 6/8 części wynosi 332 700,00 zł, zaś cena wywołania jest równa 3/4 sumy oszacowania i wynosi 249 525,00 zł. Licytant przystępujący do przetargu powinien złożyć rękojmię w wysokości jednej dziesiątej sumy oszacowania, to jest 33 270,00zł.
Sprzedaż nieruchomości w drodze licytacji elektronicznej jest przeprowadzana za pośrednictwem systemu teleinformatycznego (adres: https://elicytacje.komornik.pl/). Warunkiem udziału w przetargu jest utworzenie indywidualnego konta w systemie teleinformatycznym.
Rękojmia powinna być złożona na rachunek bankowy komornika: BNP PARIBAS S.A. nr 79 1600 1462 1833 5972 6000 0001 wskazując w tytule, iż jest to rękojmia na licytację w sprawie: "KM 191/22, NUMER UDZIAŁU W PRAWIE: 1" (WAŻNE Z UWAGI NA PROWADZENIE LICYTACJI Z TRZECH RÓŻNYCH UDZIAŁÓW). Rękojmię należy złożyć na rachunek bankowy komornika najpóźniej na 2 dni robocze przed rozpoczęciem przetargu. Za datę złożenia rękojmi przyjmuje się dzień uznania rachunku bankowego komornika.
Przepisu art. 964 nie stosuje się. Wraz z rękojmią licytant zobowiązany jest do podania w systemie teleinformatycznym danych niezbędnych do wydania postanowienia o przybiciu: numeru PESEL, numeru dokumentu stwierdzającego tożsamość i oświadczenia, czy pozostaje w związku małżeńskim, a jeżeli tak, czy nieruchomość zamierza nabyć do majątku wspólnego czy osobistego, oraz do wskazania, czy licytuje we własnym imieniu czy jako pełnomocnik innej osoby, a także innych danych, jeżeli potrzeba ich podania wynika z przepisów odrębnych ustaw. W razie potrzeby komornik niezwłocznie wzywa licytanta, pod rygorem niedopuszczenia do udziału w przetargu, za pośrednictwem systemu teleinformatycznego do uzupełnienia danych, a jeżeli udział w przetargu wymaga zezwolenia organu władzy publicznej lub wykazania umocowania do występowania w imieniu innej osoby - do przedłożenia utrwalonych w postaci elektronicznej kopii wymaganych dokumentów w terminie 3 dni, nie później niż dzień przed terminem licytacji. Komornik potwierdza fakt złożenia rękojmi i podania danych, niezwłocznie po ich otrzymaniu, poprzez dopuszczenie licytanta do udziału w przetargu. O odmowie dopuszczenia do przetargu zawiadamia się zainteresowanego za pośrednictwem systemu teleinformatycznego. Zgodnie z przepisem art.976 §1 kpc w przetargu nie mogą uczestniczyć osoby, które mogą nabyć nieruchomość tylko za zezwoleniem organu państwowego, a zezwolenia tego nie przedstawiły oraz inne osoby wymienione w tym artykule. W ciągu dwóch ostatnich tygodni przed licytacją wolno oglądać nieruchomość w dni powszednie oraz przeglądać odpis protokołu opisu i oszacowania nieruchomości, operat szacunkowy biegłego sądowego z akt postępowania egzekucyjnego o sygn.: Km 623/23 w kancelarii komornika (po wcześniejszym ustaleniu telefonicznie lub e-mailowo terminu przeglądu z kancelarią komornika). Prawa osób trzecich nie będą przeszkodą do licytacji i przysądzenia własności na rzecz nabywcy bez zastrzeżeń, jeżeli osoby te przed rozpoczęciem przetargu nie złożą dowodu, że wniosły powództwo o zwolnienie nieruchomości lub przedmiotów razem z nią zajętych od egzekucji i uzyskały w tym zakresie orzeczenie wstrzymujące egzekucję. Użytkowanie, służebności i prawa dożywotnika, jeżeli nie są ujawnione w księdze wieczystej lub przez złożenie dokumentu do zbioru dokumentów i nie zostaną zgłoszone najpóźniej na trzy dni przed rozpoczęciem licytacji, nie będą uwzględnione w dalszym toku egzekucji i wygasną z chwilą uprawomocnienia się postanowienia o przysądzeniu własności. Za datę złożenia rękojmi przyjmuje się dzień uznania rachunku bankowego komornika. Przepisu art. 964 nie stosuje się. Wraz z rękojmią licytant zobowiązany jest do podania w systemie teleinformatycznym danych niezbędnych do wydania postanowienia o przybiciu: numeru PESEL, numeru dokumentu stwierdzającego tożsamość i oświadczenia, czy pozostaje w związku małżeńskim, a jeżeli tak, czy nieruchomość zamierza nabyć do majątku wspólnego czy osobistego, oraz do wskazania, czy licytuje we własnym imieniu czy jako pełnomocnik innej osoby, a także innych danych, jeżeli potrzeba ich podania wynika z przepisów odrębnych ustaw. W toku przetargu licytanci ofiarują cenę nabycia za pośrednictwem systemu teleinformatycznego. Postąpienie nie może wynosić mniej niż jeden procent ceny wywołania, z zaokrągleniem wzwyż do pełnych złotych.Przepisu art. 980 nie stosuje się. W razie umorzenia egzekucji na podstawie art. 981 komornik niezwłocznie anuluje przetarg. Jeżeli w jednym z kilku prowadzonych równocześnie na podstawie art. 986(3) § 3 zdanie drugie przetargów zaofiarowano cenę przekraczającą łączną wysokość należności wierzycieli egzekwujących i kosztów egzekucyjnych, komornik może anulować pozostałe przetargi. Z chwilą anulowania przetargu zaofiarowane przez licytantów ceny przestają wiązać. Przetarg wygrywa licytant, którego oferta była w chwili zakończenia przetargu najwyższa. Po zakończeniu przetargu komornik za pośrednictwem systemu teleinformatycznego informuje licytantów o wyłonieniu licytanta ofiarującego najwyższą cenę w chwili zakończenia przetargu. Jeżeli w ciągu 5 minut przed planowanym terminem zakończenia przetargu zgłoszono postąpienie, termin ten ulega odroczeniu o 5 minut. Jeżeli w dodatkowym czasie zgłoszono dalsze postąpienie, termin zakończenia przetargu podlega każdorazowo odroczeniu o kolejne 5 minut, aż do momentu gdy ustaną postąpienia. Skargę na odmowę dopuszczenia do przetargu można złożyć w terminie 3 dni od dnia odmowy dopuszczenia do przetargu, a na przebieg przetargu - w terminie 3 dni od dnia jego zakończenia. Licytanci i osoby, których nie dopuszczono do przetargu, mogą złożyć skargę wyłącznie za pośrednictwem systemu teleinformatycznego. Skargę za pośrednictwem systemu teleinformatycznego mogą złożyć także osoby niewymienione w § 2, o ile posiadają w tym systemie konto. Po uprawomocnieniu się postanowienia o przybiciu komornik wzywa licytanta, który uzyskał przybicie (nabywcę), aby w ciągu dwóch tygodni od dnia otrzymania wezwania złożył na rachunek depozytowy Ministra Finansów cenę nabycia z potrąceniem rękojmi złożonej w gotówce. Na wniosek nabywcy komornik może oznaczyć dłuższy termin uiszczenia ceny nabycia, nieprzekraczający jednak miesiąca. Jeżeli nabywca nie wykonał w terminie warunków licytacyjnych co do zapłaty ceny, traci rękojmię, a skutki przybicia wygasają. Uiszczoną część ceny zwraca się. Następstwa te sąd stwierdza postanowieniem, na które przysługuje zażalenie. Od nabywcy nieskładającego rękojmi, który nie wykonał warunków licytacyjnych, ściąga się rękojmię w trybie egzekucji należności sądowych. Z rękojmi utraconej przez nabywcę lub od niego ściągniętej pokrywa się koszty egzekucji związane ze sprzedażą, a reszta wchodzi w skład sumy uzyskanej w egzekucji albo jeżeli egzekucja została umorzona, jest przelewana na dochód Skarbu Państwa. Nabywca nie może żądać unieważnienia nabycia ani zmniejszenia ceny z powodu wad nieruchomości lub przedmiotów razem z nią nabytych. W przetargu nie mogą uczestniczyć: dłużnik, komornik, ich małżonkowie, dzieci, rodzice i rodzeństwo oraz osoby obecne na licytacji w charakterze urzędowym, licytant, który nie wykonał warunków poprzedniej licytacji, osoby, które mogą nabyć nieruchomość tylko za zezwoleniem organu państwowego, a zezwolenia tego nie przedstawiły. Postąpienie nie może wynosić mniej niż jeden procent ceny wywołania, z zaokrągleniem wzwyż do pełnych złotych. Stawienie się jednego licytanta wystarcza do odbycia przetargu. Jeżeli należność wierzyciela będzie uiszczona wraz z kosztami przed zamknięciem przetargu, komornik umorzy egzekucję. Komornicy sądowi wykonujący czynności egzekucyjne w rozumieniu przepisów ustawy z dnia 17 listopada 1964 r. - Kodeks postępowania cywilnego, w przypadku sprzedaży towarów objętych podatkiem VAT, wystawiają w imieniu dłużnika i na jego rachunek faktury potwierdzające dokonanie sprzedaży tych towarów. Fakturę wystawia się, jeżeli na dłużniku spoczywa obowiązek podatkowy związany ze sprzedażą towarów.
Regulamin e-licytacji - ogólne warunki użytkowania systemu e-licytacje, dostępny jest pod adresem witryny interenetowej: https://elicytacje.komornik.pl/rules . Przed licytacją należy zapoznać się z regulaminem.
Komornik Sądowy
Piotr Szewc


