Szczegóły licytacji
Komornik Sądowy
przy Sądzie Rejonowym w Wałbrzychu
Monika Janus
Kancelaria Komornicza, ul.Dmowskiego 22, Wałbrzych, 58-300 Wałbrzych
tel. 746667725-26 / fax. 748434142
Sygnatura: GKm 88/23
OBWIESZCZENIE O PIERWSZEJ LICYTACJI NIERUCHOMOŚCI W DRODZE LICYTACJI ELEKTRONICZNEJ
Komornik Sądowy Przy Sądzie Rejonowym w Wałbrzychu podaje do publicznej wiadomości, że w sprawie GKm 88/23 w dniu: 10.12.2025 o godzinie: 11:00 rozpocznie się w trybie ustalonym w art. 9864 § 4 ustawy z dnia 17 listopada 1964 r. Kodeks postępowania cywilnego (dalej: kpc) pierwsza licytacja w trybie elektronicznym następujących nieruchomości:
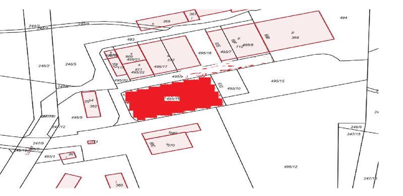
- użytkowania wieczystego położonego przy ul. Ludowa dz.495/15, 58-304 Wałbrzych, dla której Sąd Rejonowy w Wałbrzychu VII Wydział Ksiąg Wieczystych (adres: ul. Słowackiego 11a, Wałbrzych, 58-300 Wałbrzych) prowadzi księgę wieczystą o numerze SW1W/00050425/9.
Opis nieruchomości:
prawo wieczystego użytkowania nieruchomości gruntowej składającej się z działki nr 495/14, mającej regularny kształt prostokąta o powierzchni 0,2659ha. Teren działki zaniedbany, częściowo utwardzony płytami betonowymi i ogrodzony. Właścicielem nieruchomości jest Gmina Wałbrzych, a okres użytkowania wieczystego oznaczono do 30.12.2096r.
Nieruchomość zlokalizowana: 58-304 Wałbrzych, ul. Ludowa, dla której Sąd Rejonowy w Wałbrzychu VII Wydział Ksiąg Wieczystych prowadzi księgę wieczystą o numerze KW SW1W/00050425/9.
Suma oszacowania wynosi 110 085,00 zł, zaś cena wywołania jest równa 3/4 sumy oszacowania i wynosi 82 563,75 zł. Sprzedaż towaru podlega opodatkowaniu podatkiem VAT w wysokości 23%. Wyżej zaprezentowana kwota stanowi kwotę brutto.
W ciągu dwóch tygodni przed licytacją wolno oglądać wyżej wymienioną nieruchomość w dni powszednie od godz. 12:00 do godz. 14:00. W systemie teleinformatycznym udostępnia się natomiast protokół opisu i oszacowania.
Licytant przystępujący do przetargu powinien złożyć rękojmię w wysokości jednej dziesiątej sumy oszacowania, to jest kwotę 11 008,50 zł.
Rękojmię należy złożyć na rachunek bankowy komornika 37 1090 2271 0000 0005 8411 2951 najpóźniej na 2 dni robocze przed rozpoczęciem przetargu.
Sprzedaż dokonywana jest w drodze licytacji elektronicznej. Uczestnictwo w przetargu wymaga założenia konta w systemie teleinformatycznym obsługującym licytacje elektroniczne dostępnym pod adresem https://elicytacje.komornik.pl/ oraz przystąpienia do przetargu na dwa dni robocze przed jego rozpoczęciem. Licytant składa rękojmię najpóźniej na 2 dni robocze przed rozpoczęciem przetargu, a jeżeli bierze udział w licytacji jako pełnomocnik innej osoby, to przedkłada dodatkowo swoje umocowanie. Udział jednego licytanta wystarcza do odbycia przetargu.
Na podstawie art. 9864 § 2 kpc warunkiem udziału w przetargu jest utworzenie indywidualnego konta w systemie teleinformatycznym.
Licytacje wyżej wymienionych nieruchomości odbywają się w trybie elektronicznym i zakończą się w dniu: 17.12.2025 o godzinie: 11:00. Na podstawie art. 9867po § 31 kpc, jeżeli w ciągu 5 minut przed planowanym terminem zakończenia przetargu zgłoszono postąpienie, termin ten ulega odroczeniu o 5 minut. Jeżeli w dodatkowym czasie zgłoszono dalsze postąpienie, termin zakończenia przetargu podlega każdorazowo odroczeniu o kolejne 5 minut, aż do momentu gdy ustaną postąpienia.
Prawa osób trzecich nie będą przeszkodą do przeprowadzenia licytacji i przybicia na rzecz nabywcy bez zastrzeżeń, jeżeli osoby te przed rozpoczęciem przetargu nie złożą dowodu, że wniosły powództwo o zwolnienie przedmiotów od egzekucji i uzyskały w tym zakresie orzeczenie wstrzymujące egzekucję.
Użytkowanie, służebności i prawa dożywotnika, jeżeli nie są ujawnione w księdze wieczystej lub przez złożenie dokumentu do zbioru dokumentów i nie zostaną zgłoszone najpóźniej na trzy dni przed rozpoczęciem licytacji, nie będą uwzględnione w dalszym toku egzekucji i wygasną z chwilą uprawomocnienia się postanowienia o przysądzeniu własności.
Zgodnie z art. 976 kpc, w przetargu nie mogą uczestniczyć: dłużnik, komornik, ich małżonkowie, dzieci, rodzice i rodzeństwo oraz osoby obecne na licytacji w charakterze urzędowym, licytant, który nie wykonał warunków poprzedniej licytacji, osoby, które mogą nabyć nieruchomość tylko za zezwoleniem organu państwowego, a zezwolenia tego nie przedstawiły.
Zgodnie z art. 18 ustawy o podatku od towarów i usług (Dz.U. Nr 54, poz. 535) komornicy sądowi wykonujący czynności egzekucyjne w rozumieniu przepisów kodeksu postępowania cywilnego są płatnikami podatku od dostawy, dokonywanej w trybie egzekucji, towarów będących własnością dłużnika lub posiadanych przez niego z naruszeniem obowiązujących przepisów. Zgodnie z art. 106 c pkt 2 o podatku od towarów i usług faktury dokumentujące dostawę towarów, o której mowa w art. 18 cytowanej ustawy, z tytułu której na dłużniku ciąży obowiązek podatkowy, wystawiają w imieniu i na rzecz dłużnika komornicy sądowi wykonujący czynności egzekucyjne w rozumieniu przepisów kodeksu postępowania cywilnego.
Komornik Sądowy
Monika Janus


