Używamy informacji zapisanych za pomocą cookies i podobnych technologii m.in. w celach statystycznych oraz w celu dostosowania naszych serwisów do indywidualnych potrzeb użytkowników. Mogą też stosować je współpracujące z nami firmy badawcze oraz dostawcy aplikacji multimedialnych. W programie służącym do obsługi internetu można zmienić ustawienia dotyczące cookies. Korzystanie z naszych serwisów internetowych bez zmiany ustawień dotyczących cookies oznacza, że będą one zapisane w pamięci urządzenia.
STREFA DLA KOMORNIKÓW SĄDOWYCH

Szczegóły licytacji

Komornik Sądowy

przy Sądzie Rejonowym  dla Warszawy-Mokotowa

Marcin Pieńkos

Kancelaria Komornicza, Cybernetyki 13,  Warszawa,   02-677 Warszawa

tel. 228422728 / fax. 228422558

Sygnatura: Km 6888/21


OBWIESZCZENIE O PIERWSZEJ LICYTACJI NIERUCHOMOŚCI W DRODZE LICYTACJI ELEKTRONICZNEJ


Komornik Sądowy przy Sądzie Rejonowym dla Warszawy Mokotowa w Warszawie Marcin Pieńkos podaje do publicznej wiadomości, że w sprawie Km 6888/21 rozpocznie się w trybie ustalonym w art. 9864 § 4 ustawy z dnia 17 listopada 1964 r. Kodeks postępowania cywilnego (dalej: kpc) pierwsza licytacja w trybie elektronicznym następujących nieruchomości: 



- lokalu mieszkalnego położonego przy  ul. Branickiego 11/139, 02-972 Warszawa, dla którego Sąd Rejonowy dla Warszawy-Mokotowa w Warszawie VII Wydział Ksiąg Wieczystych  (adres: ul.  Solidarności 58, Warszawa, 00-240 Warszawa)  prowadzi księgę wieczystą o numerze WA2M/00489561/2.

Opis nieruchomości:
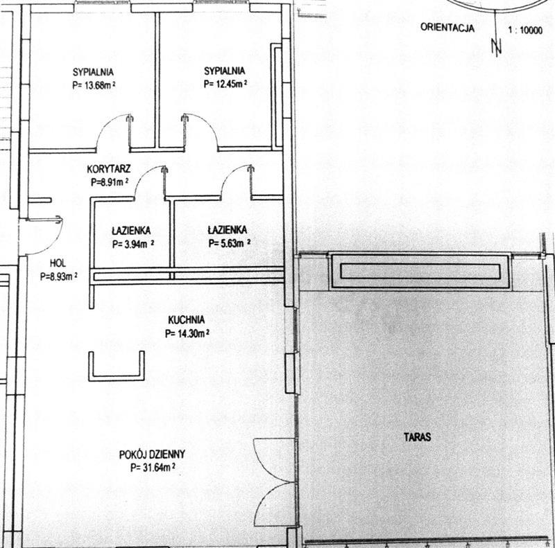
Mieszkanie o powierzchni użytkowej 99,48m2. Wg rzutu i księgi wieczystej składa się z pokoju dziennego, kuchni, dwóch sypialni, holu, korytarza i dwóch łazienek. Przylega do niego taras i przynależy komórka lokatorska o pow. 7,27 m2. Mieszkanie położone jest na czwartej kondygnacji budynku, wyposażonego w windę, wzniesionego około 2010 roku. Jest to mieszkanie wewnętrzne, rozkładowe. Po wejściu do mieszkania znajduje się hall, z którego dostępne są na prawo część dzienna z pokojem dziennym i kuchnią oraz na lewo część nocna – dwie sypialnie, dwie łazienki. Do pokoju dziennego przylega taras. Jest to mieszkanie dwustronne. Okna pokoju dziennego i taras usytuowane od strony południowej. Okna sypialni usytuowane od strony północnej. UWAGA: Na podstawie badania akt księgi wieczystej nr WA2M/00489561/2 ustalono, że w księdze wieczystej podana jest łączna powierzchnia mieszkania i komórki lokatorskiej. Powierzchnia mieszkania wynosi 99,48 m2. Lokal mieszkalny posiada dostęp do drogi publicznej poprzez nieruchomość gruntową (działka ewidencyjna nr 2/47 z obrębu 1-10-37, która stanowi drogę wewnętrzną) będącą przedmiotem przetargu w trybie elektronicznym w dniach od 26.11.2025r. od godz. 12:00- do 03.12.2025r. do godz. 12:00). Rekomenduje się łączną sprzedaż nieruchomości KW WA2M/00489561/2 oraz udziału 10/3580 z nieruchomości objętej treścią KW WA2M/00467299/4. Sprzedaż bez udziału w drodze wewnętrznej będzie sprzedażą z wadą prawną tj. lokalu bez dostępu do drogi publicznej.


Suma oszacowania wynosi 1 488 600,00 zł, zaś cena wywołania jest równa 3/4 sumy oszacowania i wynosi 1 116 450,00 zł.  


W ciągu dwóch tygodni przed licytacją wolno oglądać wyżej wymienioną nieruchomość w dni powszednie od godz. 00:00 do godz. 00:00. W systemie teleinformatycznym udostępnia się natomiast protokół opisu i oszacowania.


Licytant przystępujący do przetargu powinien złożyć rękojmię w wysokości jednej dziesiątej sumy oszacowania, to jest kwotę 148 860,00 zł.

Rękojmię należy złożyć na rachunek bankowy komornika 72 1160 2202 0000 0001 3125 7871 najpóźniej na 2 dni robocze przed rozpoczęciem przetargu. 


Przetarg odbywa się w trybie sprzedaży nieruchomości w drodze licytacji elektronicznej i rozpocznie się w dniu: 26.11.2025 o godzinie: 10.00  a zakończy się w dniu 03.12.2025 o godzinie: 10.00.  Na podstawie art. 986§ 31 kpc, jeżeli w ciągu 5 minut przed planowanym terminem zakończenia przetargu zgłoszono postąpienie, termin ten ulega odroczeniu o 5 minut. Jeżeli w dodatkowym czasie zgłoszono dalsze postąpienie, termin zakończenia przetargu podlega każdorazowo odroczeniu o kolejne 5 minut, aż do momentu gdy ustaną postąpienia.


Sprzedaż dokonywana jest w drodze licytacji elektronicznej. Uczestnictwo w przetargu wymaga założenia konta w systemie teleinformatycznym obsługującym licytacje elektroniczne dostępnym pod adresem https://elicytacje.komornik.pl/  oraz przystąpienia do przetargu na dwa dni robocze przed jego rozpoczęciem. Licytant składa rękojmię najpóźniej na 2 dni robocze przed rozpoczęciem przetargu, a jeżeli bierze udział w licytacji jako pełnomocnik innej osoby, to przedkłada dodatkowo swoje umocowanie. Udział jednego licytanta wystarcza do odbycia przetargu. 

Na podstawie art.  9864 §  2 kpc warunkiem udziału w przetargu jest utworzenie indywidualnego konta w systemie teleinformatycznym. 


Prawa osób trzecich nie będą przeszkodą do przeprowadzenia licytacji i przybicia na rzecz nabywcy bez zastrzeżeń, jeżeli osoby te przed rozpoczęciem przetargu nie złożą dowodu, że wniosły powództwo o zwolnienie przedmiotów od egzekucji i uzyskały w tym zakresie orzeczenie wstrzymujące egzekucję.


Użytkowanie, służebności i prawa dożywotnika, jeżeli nie są ujawnione w księdze wieczystej lub przez złożenie dokumentu do zbioru dokumentów i nie zostaną zgłoszone najpóźniej na trzy dni przed rozpoczęciem licytacji, nie będą uwzględnione w dalszym toku egzekucji i wygasną z chwilą uprawomocnienia się postanowienia o przysądzeniu własności. 


Zgodnie z art.  976 kpc, w przetargu nie mogą uczestniczyć: dłużnik, komornik, ich małżonkowie, dzieci, rodzice i rodzeństwo oraz osoby obecne na licytacji w charakterze urzędowym, licytant, który nie wykonał warunków poprzedniej licytacji, osoby, które mogą nabyć nieruchomość tylko za zezwoleniem organu państwowego, a zezwolenia tego nie przedstawiły.




Komornik Sądowy

Marcin Pieńkos


Kategoriamieszkania
Powierzchnia [m^2]99,48
Rok budowy [rok]2010
Piętro4
Liczba pokoi3
Pomieszczeniakuchnia, taras, łazienka, komórka lokatorska
Dodatkoweteren ogrodzony, winda
Mediagaz, woda, kanalizacja
Przeznaczenie gospodarczelokal mieszkalny
Forma własnościprawo własności
Wielkość udziału1/1
Liczba pięter w budynku5
Link do E-LicytacjiPrzejdź

Powrót