Szczegóły licytacji
Komornik Sądowy
przy Sądzie Rejonowym w Rawie Mazowieckiej
Paweł Pazdyga
Kancelaria Komornicza, ul. Armii Krajowej 2, Rawa Mazowiecka, 96-200 Rawa Mazowiecka
tel. 46 814 39 19 / fax. 46 814 39 19
Sygnatura: KM 73/23
OBWIESZCZENIE O DRUGIEJ LICYTACJI NIERUCHOMOŚCI W DRODZE LICYTACJI ELEKTRONICZNEJ
Komornik Sądowy przy Sądzie Rejonowym w Rawie Mazowieckiej Paweł Pazdyga na podstawie art. 986 4 § 3 kpc podaje do publicznej wiadomości, że o godzinie 12.00 w dniu 13.01.2026
na portalu https://e-licytacje.komornik.pl/
rozpocznie się druga licytacja
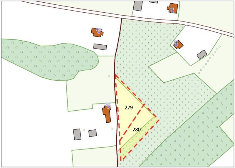
nieruchomości położonej przy Zielone 22, 96-200 Rawa Mazowiecka, dla której Wydział Ksiąg Wieczystych Sądu Rejonowego w Rawie Maz. Sąd Rejonowy w Rawie mazowieckiej (adres: ul. Kościuszki 17 Kościuszki 17, Rawa mazowiecka, 96-200 Rawa Mazowiecka) prowadzi księgę wieczystą o numerze LD1R/00046760/7.
Opis nieruchomości:
położenie (adres): Zielone gm. Rawa Mzowiecka
oznaczenie: grunty orne
granice i obszar:
Nieruchomość składa się z działek gruntu 101304_2.0046.279 i 101304_2.0046.280
Powierzchnia łączna nieruchomości: 0,23 ha
oznaczenie księgi wieczystej/zbioru dokumentów: LD1R/00046760/7
Nieruchomość składa się z dwóch działek w kompleksie o kształcie trójkąta prostokątnego, z dostępem do drogi publicznej od strony zachodniej (bokiem przeciwprostokątnym). Brak dostepu do mediów. Działka 279 porośnięta trawą, działka 280 na obszarze ok. 0,0634 ha zadrzewiona w przewadze sosną oraz brzozą, pozostałość porośnięta trawą.
Zgodnie z obowiązującym planem zagospodarowania przestrzennego nieruchomość znajduje się w obszarze oznaczonym symbolem: 46.14.R,RL, przeznaczenie terenu: Rolnictwo i leśnictwo
Nieruchomość obciążona jest nieodpłatnym dozywotnim użytkowaniem całych działek 279 i 280 wpisanym na rzecz Beaty Stacheckiej i Piotra Tomasza Stacheckiego. Wartość użytkowania: 3557 zł.
Przetarg odbywa się w drodze elektronicznej i zakończy się w dniu 20.01.2026 o godzinie: 12.00 .
Suma oszacowania wynosi 12 332,00 zł
Cena wywołania jest równa 2/3 sumy oszacowania i wynosi 8 221,33 zł.
Licytant przystępujący do przetargu powinien złożyć rękojmię w wysokości jednej dziesiątej sumy oszacowania, to jest kwotę 1 233,20 zł.
Rękojmię należy złożyć za pośrednictwem systemu teleinformatycznego obsługującego licytacje elektroniczne, lub na rachunek bankowy komornika 20930210272602323020000010 najpóźniej na 2 dni robocze przed rozpoczęciem przetargu. Za datę złożenia rękojmi przyjmuje się dzień uznania rachunku bankowego komornika.
Wraz z rękojmią licytant zobowiązany jest do podania w systemie teleinformatycznym danych niezbędnych do wydania postanowienia o przybiciu: numeru PESEL, numeru dokumentu stwierdzającego tożsamość i oświadczenia, czy pozostaje w związku małżeńskim, a jeżeli tak, czy nieruchomość zamierza nabyć do majątku wspólnego czy osobistego, oraz do wskazania, czy licytuje we własnym imieniu czy jako pełnomocnik innej osoby, a także innych danych, jeżeli potrzeba ich podania wynika z przepisów odrębnych ustaw. Jeżeli udział w przetargu wymaga zezwolenia organu władzy publicznej lub wykazania umocowania do występowania w imieniu innej osoby – do przedłożenia utrwalonych w postaci elektronicznej kopii wymaganych dokumentów w terminie 3 dni, nie później niż dzień przed terminem licytacji.
W ciągu dwóch tygodni przed licytacją wolno oglądać wyżej wymienioną nieruchomość w dni powszednie od godz. 09:00 do godz. 15:00. W systemie teleinformatycznym udostępnia się również protokół opisu i oszacowania.
Prawa osób trzecich nie będą przeszkodą do licytacji i przysądzenia własności na rzecz nabywcy bez zastrzeżeń, jeżeli osoby te przed rozpoczęciem przetargu nie złożą dowodu, iż wniosły powództwo o zwolnienie nieruchomości lub przedmiotów razem z nią zajętych od egzekucji i uzyskały w tym zakresie orzeczenie wstrzymujące egzekucję.
Użytkowanie, służebności i prawa dożywotnika, jeżeli nie są ujawnione w księdze wieczystej lub przez złożenie dokumentu do zbioru dokumentów i nie zostaną zgłoszone najpóźniej na trzy dni przed rozpoczęciem licytacji, nie będą uwzględnione w dalszym toku egzekucji i wygasną z chwilą uprawomocnienia się postanowienia o przysądzeniu własności.
Komornik informuje o treści przepisów Kodeksu Postępowania Cywilnego:
Zgodnie z art. 967. Po uprawomocnieniu się postanowienia o przybiciu komornik wzywa licytanta, który uzyskał przybicie (nabywcę), aby w ciągu dwóch tygodni od dnia otrzymania wezwania złożył na rachunek depozytowy Ministra Finansów cenę nabycia z potrąceniem rękojmi złożonej w gotówce. Na wniosek nabywcy komornik może oznaczyć dłuższy termin uiszczenia ceny nabycia, nieprzekraczający jednak miesiąca.
Zgodnie z art. 969. § 1. Jeżeli nabywca nie wykonał w terminie warunków licytacyjnych co do zapłaty ceny, traci rękojmię, a skutki przybicia wygasają. Uiszczoną część ceny zwraca się. Następstwa te sąd stwierdza postanowieniem, na które przysługuje zażalenie, § 2. Od nabywcy nieskładającego rękojmi, który nie wykonał warunków licytacyjnych, ściąga się rękojmię w trybie egzekucji należności sądowych, § 3. Z rękojmi utraconej przez nabywcę lub od niego ściągniętej pokrywa się koszty egzekucji związane ze sprzedażą, a reszta wchodzi w skład sumy uzyskanej w egzekucji albo jeżeli egzekucja została umorzona, jest przelewana na dochód Skarbu Państwa
Zgodnie z art. 971. Nabywca nie może żądać unieważnienia nabycia ani zmniejszenia ceny z powodu wad nieruchomości lub przedmiotów razem z nią nabytych.
Zgodnie z art. 976 § 1. W przetargu nie mogą uczestniczyć: dłużnik, komornik, ich małżonkowie, dzieci, rodzice i rodzeństwo oraz osoby obecne na licytacji w charakterze urzędowym, licytant, który nie wykonał warunków poprzedniej licytacji, osoby, które mogą nabyć nieruchomość tylko za zezwoleniem organu państwowego, a zezwolenia tego nie przedstawiły, § 2. Stawienie się jednego licytanta wystarcza do odbycia przetargu.
Zgodnie z art. 978 § 2. Postąpienie nie może wynosić mniej niż jeden procent ceny wywołania, z zaokrągleniem wzwyż do pełnych złotych.
Zgodnie z art. 981. Jeżeli należność wierzyciela będzie uiszczona wraz z kosztami przed zamknięciem przetargu, komornik umorzy egzekucję. W takim przypadku licytacja zostanie zniesiona.
Zgodnie z art. 986(7) § 1. Przetarg rozpoczyna się i kończy z chwilą wskazaną w obwieszczeniu o licytacji nieruchomości, § 2. Komornik wyznacza licytację elektroniczną w taki sposób, aby zarówno termin rozpoczęcia, jak i zakończenia przetargu przypadał pomiędzy godziną 9.00 a 14.00 w dni robocze. Czas trwania przetargu wynosi 7 dni. § 3.1 Jeżeli w ciągu 5 minut przed planowanym terminem zakończenia przetargu zgłoszono postąpienie, termin ten ulega odroczeniu o 5 minut. Jeżeli w dodatkowym czasie zgłoszono dalsze postąpienie, termin zakończenia przetargu podlega każdorazowo odroczeniu o kolejne 5 minut, aż do momentu gdy ustaną postąpienia. § 5 Przetarg wygrywa licytant, którego oferta była w chwili zakończenia przetargu najwyższa.
Zgodnie z art. 986(8) § 1. Skargę na odmowę dopuszczenia do przetargu można złożyć w terminie 3 dni od dnia odmowy dopuszczenia do przetargu, a na przebieg przetargu - w terminie 3 dni od dnia jego zakończenia, § 2. Licytanci i osoby, których nie dopuszczono do przetargu, mogą złożyć skargę wyłącznie za pośrednictwem systemu teleinformatycznego, § 3. Skargę za pośrednictwem systemu teleinformatycznego mogą złożyć także osoby niewymienione w § 2, o ile posiadają w tym systemie konto.
Komornik Sądowy
Paweł Pazdyga


