Szczegóły licytacji
Komornik Sądowy
przy Sądzie Rejonowym w Brzezinach
Andrzej Jóźwiak
Kancelaria Komornicza, Lasockich 33, Brzeziny, 95-060 Brzeziny
tel. 468744740 / fax. 468744740
Sygnatura: Km 1080/24
OBWIESZCZENIE O DRUGIEJ LICYTACJI NIERUCHOMOŚCI W DRODZE LICYTACJI ELEKTRONICZNEJ
Komornik Sądowy przy Sądzie Rejonowym w Brzezinach Andrzej Jóźwiak podaje do publicznej wiadomości, że w sprawie Km 1080/24 w dniu: 14.01.2026 o godzinie: 09:00 rozpocznie się w trybie ustalonym w art. 9864 § 4 ustawy z dnia 17 listopada 1964 r. Kodeks postępowania cywilnego (dalej: kpc) druga licytacja w trybie elektronicznym następujących nieruchomości:
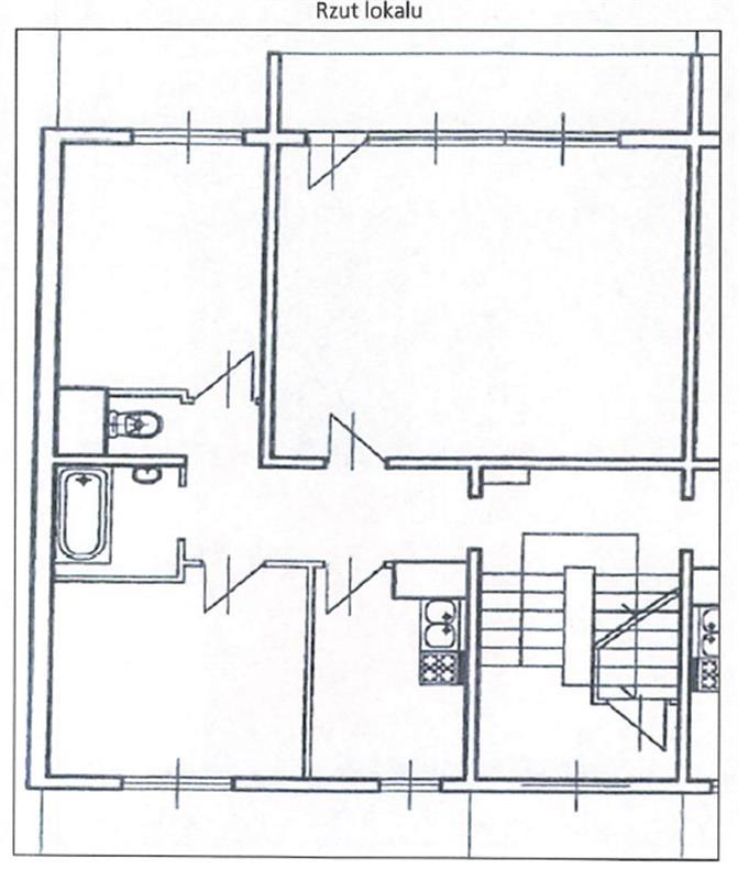
- spółdzielczego lokalu mieszkalnego położonego przy Hetmana 4/3, 95-060 Brzeziny, dla którego Sąd Rejonowy w Brzezinach IV Wydział Ksiąg Wieczystych (adres: ul. Waryńskiego 34, Brzeziny, 95-060 Brzeziny) prowadzi księgę wieczystą o numerze LD1B/00041219/0, wpisanego do rejestru lokali własnościowych: Brzezińska Spółdzielnia Mieszkaniowa pod numerem - (adres spółdzielni: Głowackiego 7/11, Brzeziny, 95-060 Brzeziny).
Opis nieruchomości:
Lokal usytuowany jest na II kondygnacji (Ipiętro) i składa się z trzech pokoi, kuchni,przedpokoju, łazienki oraz WC o łącznej powierzchni użytkowej 60,33m2. Do lokalu przynależy komórkalokatorska o powierzchni 5,13m2
Suma oszacowania wynosi 372 400,00 zł, zaś cena wywołania jest równa 2/3 sumy oszacowania i wynosi 248 266,67 zł.
W ciągu dwóch tygodni przed licytacją wolno oglądać wyżej wymienioną nieruchomość w dni powszednie od godz. 08:00 do godz. 14:00. W systemie teleinformatycznym udostępnia się natomiast protokół opisu i oszacowania.
Licytant przystępujący do przetargu powinien złożyć rękojmię w wysokości jednej dziesiątej sumy oszacowania, to jest kwotę 37 240,00 zł.
Rękojmię należy złożyć na rachunek bankowy komornika 07 1240 3334 1111 0000 2773 1093 najpóźniej na 2 dni robocze przed rozpoczęciem przetargu.
Sprzedaż dokonywana jest w drodze licytacji elektronicznej. Uczestnictwo w przetargu wymaga założenia konta w systemie teleinformatycznym obsługującym licytacje elektroniczne dostępnym pod adresem https://elicytacje.komornik.pl/ oraz przystąpienia do przetargu na dwa dni robocze przed jego rozpoczęciem. Licytant składa rękojmię najpóźniej na 2 dni robocze przed rozpoczęciem przetargu, a jeżeli bierze udział w licytacji jako pełnomocnik innej osoby, to przedkłada dodatkowo swoje umocowanie. Udział jednego licytanta wystarcza do odbycia przetargu.
Na podstawie art. 9864 § 2 kpc warunkiem udziału w przetargu jest utworzenie indywidualnego konta w systemie teleinformatycznym.
Licytacje wyżej wymienionych nieruchomości odbywają się w trybie elektronicznym i zakończą się w dniu: 21.01.2026 o godzinie: 09:00. Na podstawie art. 9867po § 31 kpc, jeżeli w ciągu 5 minut przed planowanym terminem zakończenia przetargu zgłoszono postąpienie, termin ten ulega odroczeniu o 5 minut. Jeżeli w dodatkowym czasie zgłoszono dalsze postąpienie, termin zakończenia przetargu podlega każdorazowo odroczeniu o kolejne 5 minut, aż do momentu gdy ustaną postąpienia.
Prawa osób trzecich nie będą przeszkodą do przeprowadzenia licytacji i przybicia na rzecz nabywcy bez zastrzeżeń, jeżeli osoby te przed rozpoczęciem przetargu nie złożą dowodu, że wniosły powództwo o zwolnienie przedmiotów od egzekucji i uzyskały w tym zakresie orzeczenie wstrzymujące egzekucję.
Użytkowanie, służebności i prawa dożywotnika, jeżeli nie są ujawnione w księdze wieczystej lub przez złożenie dokumentu do zbioru dokumentów i nie zostaną zgłoszone najpóźniej na trzy dni przed rozpoczęciem licytacji, nie będą uwzględnione w dalszym toku egzekucji i wygasną z chwilą uprawomocnienia się postanowienia o przysądzeniu własności.
Zgodnie z art. 976 kpc, w przetargu nie mogą uczestniczyć: dłużnik, komornik, ich małżonkowie, dzieci, rodzice i rodzeństwo oraz osoby obecne na licytacji w charakterze urzędowym, licytant, który nie wykonał warunków poprzedniej licytacji, osoby, które mogą nabyć nieruchomość tylko za zezwoleniem organu państwowego, a zezwolenia tego nie przedstawiły.
Komornik Sądowy
Andrzej Jóźwiak


