Szczegóły licytacji
OBWIESZCZENIE O SPRZEDAŻYNIERUCHOMOŚCI W DRODZE LICYTACJI ELEKTRONICZNEJ
w celu zniesienia współwłasności nieruchomości
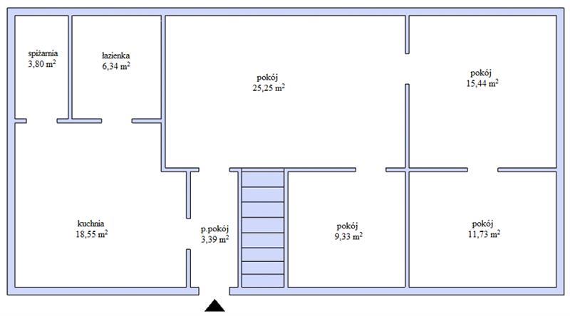
Komornik Sądowy przy Sądzie Rejonowym w Olsztynie Mariusz Chwatko, podaje do publicznej wiadomości, że wdniu 14-01-2026 o godzinie 09:00 rozpocznie się druga licytacja elektroniczna nieruchomości zabudowanej położonej pod adresem: 11-036 Gietrzwałd, Sząbruk 21 dla której Sąd Rejonowy w Olsztynie VI Wydział Ksiąg Wieczystych prowadzi księgę wieczystą o numerze OL1O/00043570/2, o powierzchni 316,00 m2, zabudowanej budynkiem mieszkalnym o powierzchni użytkowej 121,00 m2, będącej własnością: Małgorzata Pabian, Marian Wałdoch, Grażyna Stokowska, Elżbieta Jabłońska, Łukasz Metera, Zdzisław Wałdoch, Bożena Wieland, Gabriela Wałdoch-Heiseing, Jarosław Wałdoch, Dorota Wałdoch, Dariusz Wałdoch
Zgodnie z miejskim planem zagospodarowania przestrzennego / studium uwarunkowań i kierunków zagospodarowania przestrzennego nieruchomość położona jest na obszarze oznaczonym jako tereny mieszkalno usługowe - MU
Licytacja zakończy się w dniu 21-01-2026 o godzinie 09:00. Nieruchomość oszacowana jest na kwotę 481 590,00 zł. Cena wywołania wynosi dwie trzecie wartości szacunkowej tj. kwotę 321 060,00 zł.
Licytant przystępujący do przetargu powinien złożyć rękojmię w wysokości 1/10 sumy oszacowania to jest 48 159,00 zł.
Nieruchomość można oglądać w ciągu dwóch tygodni przed licytacją w godzinach od 10.00 do 18.00.
Sprzedaż w drodze licytacji elektronicznej jest dokonywana za pośrednictwem systemu teleinformatycznego dostępnego pod adresem: https://elicytacje.komornik.pl/.
Przystąpienie do przetargu wymaga zgłoszenia przystąpienia w systemie teleinformatycznym obsługującym licytacje elektroniczne dostępnym pod adresem: https://elicytacje.komornik.pl na 2 dni robocze przed rozpoczęciem przetargu. Warunkiem udziału w przetargu jest utworzenie indywidualnego konta w systemie teleinformatycznym.
Rękojmię należy złożyć na rachunek bankowy komornika numer:
Bank BNP Paribas S.A. Departament Operacji Płatniczych 64 2030 0045 1110 0000 0214 2750
najpóźniej na 2 dni robocze przed rozpoczęciem przetargu. Za datę złożenia rękojmi przyjmuje się dzień uznania rachunku bankowego komornika.
Przepisu art. 964 kpc nie stosuje się. Wraz z rękojmią licytant zobowiązany jest do podania w systemie teleinformatycznym danych niezbędnych do wydania postanowienia o przybiciu: numeru pesel, numeru dokumentu stwierdzającego tożsamość i oświadczenia, czy pozostaje w związku małżeńskim, a jeżeli tak, czy nieruchomość zamierza nabyć do majątku wspólnego czy osobistego, oraz do wskazania, czy licytuje we własnym imieniu czy jako pełnomocnik innej osoby, a także innych danych, jeżeli potrzeba ich podania wynika z przepisów odrębnych ustaw.
W razie potrzeby komornik niezwłocznie wzywa licytanta, pod rygorem niedopuszczenia do udziału w przetargu, za pośrednictwem systemu teleinformatycznego do uzupełnienia danych, a jeżeli udział w przetargu wymaga zezwolenia organu władzy publicznej lub wykazania umocowania do występowania w imieniu innej osoby - do przedłożenia utrwalonych w postaci elektronicznej kopii wymaganych dokumentów w terminie 3 dni, nie później niż dzień przed terminem licytacji.
Komornik potwierdza fakt złożenia rękojmi i podania danych niezwłocznie po ich otrzymaniu, poprzez dopuszczenie licytanta do udziału w przetargu. O odmowie dopuszczenia do przetargu zawiadamia się zainteresowanego za pośrednictwem systemu teleinformatycznego.
W przetargu nie mogą uczestniczyć: dłużnik, komornik, ich małżonkowie, dzieci, rodzice i rodzeństwo oraz osoby obecne na licytacji w charakterze urzędowym, licytant, który nie wykonał warunków poprzedniej licytacji, osoby, które mogą nabyć nieruchomość tylko za zezwoleniem organu państwowego, a zezwolenia tego nie przedstawiły.
Przetarg rozpoczyna się i kończy z chwilą wskazaną w obwieszczeniu o licytacji nieruchomości. Jeżeli w ciągu 5 minut przed planowanym terminem zakończenia przetargu zgłoszono postąpienie, termin ten ulega odroczeniu o 5 minut. Jeżeli w dodatkowym czasie zgłoszono dalsze postąpienie, termin zakończenia przetargu podlega każdorazowo odroczeniu o kolejne 5 minut, aż do momentu gdy ustaną postąpienia.
W toku przetargu licytanci ofiarują cenę nabycia za pośrednictwem systemu teleinformatycznego. Przetarg wygrywa licytant, którego oferta była w chwili zakończenia przetargu najwyższa.
Po zakończeniu przetargu komornik za pośrednictwem systemu teleinformatycznego informuje licytantów o wyłonieniu licytanta ofiarującego najwyższą cenę w chwili zakończenia przetargu. Skargę na odmowę dopuszczenia do przetargu można złożyć w terminie 3 dni od dnia odmowy dopuszczenia do przetargu, a na przebieg przetargu - w terminie 3 dni od dnia jego zakończenia.
Licytanci i osoby, których nie dopuszczono do przetargu, mogą złożyć skargę wyłącznie za pośrednictwem systemu teleinformatycznego. Skargę za pośrednictwem systemu teleinformatycznego mogą złożyć także inne osoby, o ile posiadają w tym systemie konto.
Prawa osób trzecich nie będą przeszkodą do licytacji i przysądzenia własności na rzecz nabywcy bez zastrzeżeń, jeżeli osoby te przed rozpoczęciem przetargu nie złożą dowodu, iż wniosły powództwo o zwolnienie nieruchomości lub przedmiotów razem z nią zajętych od egzekucji i uzyskały w tym zakresie orzeczenie wstrzymujące egzekucję. Użytkowanie, służebności i prawa dożywotnika, jeżeli nie są ujawnione w księdze wieczystej lub przez złożenie dokumentu do zbioru dokumentów i nie zostaną zgłoszone najpóźniej na trzy dni przed rozpoczęciem licytacji, nie będą uwzględnione w dalszym toku egzekucji i wygasną z chwilą uprawomocnienia się postanowienia o przysądzeniu własności.
Komornik Sądowy
mgr Mariusz Chwatko


