Szczegóły licytacji
Komornik Sądowy
przy Sądzie Rejonowym Lublin-Zachód w Lublinie
Marcin Witold Piech
Kancelaria Komornicza, Wolska 11A, Lublin, 20-411 Lublin
tel. 81 759 54 54 / fax.
Sygnatura: Km 1365/24
OBWIESZCZENIE O PIERWSZEJ LICYTACJI NIERUCHOMOŚCI W DRODZE LICYTACJI ELEKTRONICZNEJ
Komornik Sądowy przy Sądzie Rejonowym Lublin-Zachód w Lublinie Marcin Witold Piech Kancelaria Komornicza nr XXII w Lublinie podaje do publicznej wiadomości, że w sprawie Km 1365/24 rozpocznie się w trybie ustalonym w art. 9864 § 4 ustawy z dnia 17 listopada 1964 r. Kodeks postępowania cywilnego (dalej: kpc) pierwsza licytacja w trybie elektronicznym następujących nieruchomości:
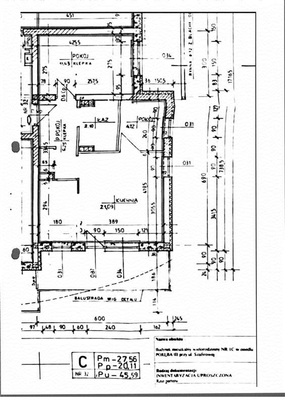
- lokalu mieszkalnego położonego przy Szafirowa 13/32, 20-573 Lublin, dla którego Sąd Rejonowy Lublin-Zachód w Lublinie X Wydział Ksiąg Wieczystych (adres: ul. Konrada Wallenroda 4D, Lublin, 20-607 Lublin) prowadzi księgę wieczystą o numerze LU1I/00227088/5.
Opis nieruchomości:
Nieruchomość lokalowa objęta KW LU1I/00227088/5 składająca się z lokalu mieszkalnego nr 32 o powierzchni użytkowej 45,59 m2 z przynależną piwnicą o powierzchni 3,46 m2 (o łącznej powierzchni lokalu wraz z powierzchnią pomieszczeń przynależnych wynoszącej 49,05 m2) - zlokalizowanego w budynku położonym w Lublinie przy ul. Szafirowej 13, z którym związany jest udział 4905/329300 części w prawie własności części wspólnych budynku i innych urządzeń nie służących do wyłącznego użytku właścicieli poszczególnych lokali oraz taki sam udział w prawie własności działki nr 73/51 o powierzchni 0,6209 ha objętej KW LU1I/00226809/9 obręb 0027, Rury Bonifraterskie, ark. 11.
UWAGA!
Sprzedaż ww. nieruchomości w trybie licytacji publicznej będzie korzystała ze zwolnienia od podatku od towarów i usług na podstawie art. 43 ust. 1 pkt 10 Ustawy z dnia 11 marca 2004 r. o podatku od towarów i usług.
Stosownie do treści przepisu art. 18 w zw. z art. 43 ust. 1 pkt 10 Ustawy z dnia 11 marca 2004 r. o podatku od towarów i usług Komornik wystawi fakturę VAT ze stawką ZW.
Suma oszacowania wynosi 432 800,00 zł, zaś cena wywołania jest równa 3/4 sumy oszacowania i wynosi 324 600,00 zł.
W ciągu dwóch tygodni przed licytacją wolno oglądać wyżej wymienioną nieruchomość w dni powszednie od godz. 10:00 do godz. 18:00. W systemie teleinformatycznym udostępnia się natomiast protokół opisu i oszacowania.
Licytant przystępujący do przetargu powinien złożyć rękojmię w wysokości jednej dziesiątej sumy oszacowania, to jest kwotę 43 280,00 zł.
Rękojmię należy złożyć na rachunek bankowy komornika 98 1600 1462 1829 1591 2000 0004 najpóźniej na 2 dni robocze przed rozpoczęciem przetargu.
Przetarg odbywa się w trybie sprzedaży nieruchomości w drodze licytacji elektronicznej i rozpocznie się w dniu: 18.03.2026 o godzinie: 12.00 a zakończy się w dniu 25.03.2026 o godzinie: 12.00. Na podstawie art. 9867 § 31 kpc, jeżeli w ciągu 5 minut przed planowanym terminem zakończenia przetargu zgłoszono postąpienie, termin ten ulega odroczeniu o 5 minut. Jeżeli w dodatkowym czasie zgłoszono dalsze postąpienie, termin zakończenia przetargu podlega każdorazowo odroczeniu o kolejne 5 minut, aż do momentu gdy ustaną postąpienia.
Sprzedaż dokonywana jest w drodze licytacji elektronicznej. Uczestnictwo w przetargu wymaga założenia konta w systemie teleinformatycznym obsługującym licytacje elektroniczne dostępnym pod adresem https://elicytacje.komornik.pl/ oraz przystąpienia do przetargu na dwa dni robocze przed jego rozpoczęciem. Licytant składa rękojmię najpóźniej na 2 dni robocze przed rozpoczęciem przetargu, a jeżeli bierze udział w licytacji jako pełnomocnik innej osoby, to przedkłada dodatkowo swoje umocowanie. Udział jednego licytanta wystarcza do odbycia przetargu.
Na podstawie art. 9864 § 2 kpc warunkiem udziału w przetargu jest utworzenie indywidualnego konta w systemie teleinformatycznym.
Prawa osób trzecich nie będą przeszkodą do przeprowadzenia licytacji i przybicia na rzecz nabywcy bez zastrzeżeń, jeżeli osoby te przed rozpoczęciem przetargu nie złożą dowodu, że wniosły powództwo o zwolnienie przedmiotów od egzekucji i uzyskały w tym zakresie orzeczenie wstrzymujące egzekucję.
Użytkowanie, służebności i prawa dożywotnika, jeżeli nie są ujawnione w księdze wieczystej lub przez złożenie dokumentu do zbioru dokumentów i nie zostaną zgłoszone najpóźniej na trzy dni przed rozpoczęciem licytacji, nie będą uwzględnione w dalszym toku egzekucji i wygasną z chwilą uprawomocnienia się postanowienia o przysądzeniu własności.
Zgodnie z art. 976 kpc, w przetargu nie mogą uczestniczyć: dłużnik, komornik, ich małżonkowie, dzieci, rodzice i rodzeństwo oraz osoby obecne na licytacji w charakterze urzędowym, licytant, który nie wykonał warunków poprzedniej licytacji, osoby, które mogą nabyć nieruchomość tylko za zezwoleniem organu państwowego, a zezwolenia tego nie przedstawiły.
Komornik Sądowy
Marcin Witold Piech


