Szczegóły licytacji
Komornik Sądowy
przy Sądzie Rejonowym w Piasecznie
Tadeusz Radecki
Kancelaria Komornicza, Powstańców Warszawy 25 A, Piaseczno, 05-500 Piaseczno
tel. 22 7502073 / fax. 22 726 74 95
Sygnatura: Km 412/22
OBWIESZCZENIE O PIERWSZEJ LICYTACJI NIERUCHOMOŚCI W DRODZE LICYTACJI ELEKTRONICZNEJ
Komornik Sadowy przy Sądzie Rejonowym w Piasecznie podaje do publicznej wiadomości, że w sprawie Km 412/22 w dniu: 11.03.2026 o godzinie: 12:00 rozpocznie się w trybie ustalonym w art. 9864 § 4 ustawy z dnia 17 listopada 1964 r. Kodeks postępowania cywilnego (dalej: kpc) pierwsza licytacja w trybie elektronicznym następujących nieruchomości:
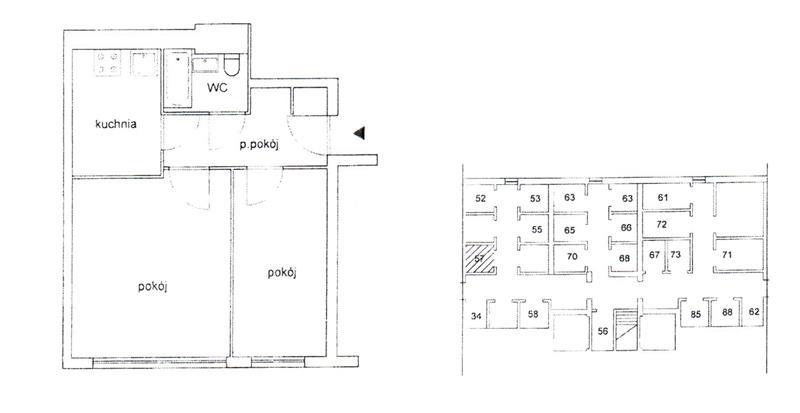
- spółdzielczego lokalu mieszkalnego położonego przy ul. Kusocińskiego 9/57, 05-500 Piaseczno, dla którego Sąd Rejonowy w Piasecznie IV Wydział Ksiąg Wieczystych (adres: ul. Kościuszki 14, Piaseczno, 05-500 Piaseczno) prowadzi księgę wieczystą o numerze brak, wpisanego do rejestru lokali własnościowych: Spółdzielnia Mieszkaniowa "Jedność" pod numerem Kusocińskiego 9/57 (adres spółdzielni: ul. Fabryczna 32a, Piaseczno, 05-500 Piaseczno).
Opis nieruchomości:
Przedmiotem licytacji jest spółdzielcze własnościowe prawo do lokalu mieszkalnego położonego: 05-500 Piaseczno, ul. Kusocińskiego 9/57,
wpisanego w rejestrze lokali własnościowych: Spółdzielnia Mieszkaniowa "Jedność" (Adres spółdzielni: 05-500 Piaseczno, ul. Fabryczna 32a), dla którego nie została sporządzona księga wieczysta. W skład prawa wchodzi położony na 2 kondygnacji (1 piętrze) budynku wielorodzinnego lokal mieszkalny o powierzchni 37,78mkw, składający się z 2 pokoi, kuchni, przedpokoju, łazienki z wc. Do lokalu przynależy komórka lokatorska o powierzchni 1,82mkw znajdujaca się w kondygnacji podziemnej budynku.
Suma oszacowania wynosi 422 000,00 zł, zaś cena wywołania jest równa 3/4 sumy oszacowania i wynosi 316 500,00 zł.
W ciągu dwóch tygodni przed licytacją wolno oglądać wyżej wymienioną nieruchomość w dni powszednie od godz. 08:00 do godz. 16:00. W systemie teleinformatycznym udostępnia się natomiast protokół opisu i oszacowania.
Licytant przystępujący do przetargu powinien złożyć rękojmię w wysokości jednej dziesiątej sumy oszacowania, to jest kwotę 42 200,00 zł.
Rękojmię należy złożyć na rachunek bankowy komornika 79 1020 1026 0000 1602 0164 7536 najpóźniej na 2 dni robocze przed rozpoczęciem przetargu.
Sprzedaż dokonywana jest w drodze licytacji elektronicznej. Uczestnictwo w przetargu wymaga założenia konta w systemie teleinformatycznym obsługującym licytacje elektroniczne dostępnym pod adresem https://elicytacje.komornik.pl/ oraz przystąpienia do przetargu na dwa dni robocze przed jego rozpoczęciem. Licytant składa rękojmię najpóźniej na 2 dni robocze przed rozpoczęciem przetargu, a jeżeli bierze udział w licytacji jako pełnomocnik innej osoby, to przedkłada dodatkowo swoje umocowanie. Udział jednego licytanta wystarcza do odbycia przetargu.
Na podstawie art. 9864 § 2 kpc warunkiem udziału w przetargu jest utworzenie indywidualnego konta w systemie teleinformatycznym.
Licytacje wyżej wymienionych nieruchomości odbywają się w trybie elektronicznym i zakończą się w dniu: 18.03.2026 o godzinie: 12:00. Na podstawie art. 9867po § 31 kpc, jeżeli w ciągu 5 minut przed planowanym terminem zakończenia przetargu zgłoszono postąpienie, termin ten ulega odroczeniu o 5 minut. Jeżeli w dodatkowym czasie zgłoszono dalsze postąpienie, termin zakończenia przetargu podlega każdorazowo odroczeniu o kolejne 5 minut, aż do momentu gdy ustaną postąpienia.
Prawa osób trzecich nie będą przeszkodą do przeprowadzenia licytacji i przybicia na rzecz nabywcy bez zastrzeżeń, jeżeli osoby te przed rozpoczęciem przetargu nie złożą dowodu, że wniosły powództwo o zwolnienie przedmiotów od egzekucji i uzyskały w tym zakresie orzeczenie wstrzymujące egzekucję.
Użytkowanie, służebności i prawa dożywotnika, jeżeli nie są ujawnione w księdze wieczystej lub przez złożenie dokumentu do zbioru dokumentów i nie zostaną zgłoszone najpóźniej na trzy dni przed rozpoczęciem licytacji, nie będą uwzględnione w dalszym toku egzekucji i wygasną z chwilą uprawomocnienia się postanowienia o przysądzeniu własności.
Zgodnie z art. 976 kpc, w przetargu nie mogą uczestniczyć: dłużnik, komornik, ich małżonkowie, dzieci, rodzice i rodzeństwo oraz osoby obecne na licytacji w charakterze urzędowym, licytant, który nie wykonał warunków poprzedniej licytacji, osoby, które mogą nabyć nieruchomość tylko za zezwoleniem organu państwowego, a zezwolenia tego nie przedstawiły.
Komornik Sądowy
Tadeusz Radecki


