Szczegóły licytacji
Komornik Sądowy
przy Sądzie Rejonowym w Bytomiu
Filip Probierz
Kancelaria Komornicza, Hutnicza 9, Bytom, 41-923 Bytom
tel. 511907783 / fax.
Sygnatura: Gkm 11/20
OBWIESZCZENIE O DRUGIEJ LICYTACJI NIERUCHOMOŚCI W DRODZE LICYTACJI ELEKTRONICZNEJ
Komornik Sądowy przy Sądzie Rejonowym w Bytomiu Filip Probierz Kancelaria Komornicza nr VIII w Bytomiu podaje do publicznej wiadomości, że w sprawie Gkm 11/20 rozpocznie się w trybie ustalonym w art. 9864 § 4 ustawy z dnia 17 listopada 1964 r. Kodeks postępowania cywilnego (dalej: kpc) druga licytacja w trybie elektronicznym następujących nieruchomości:
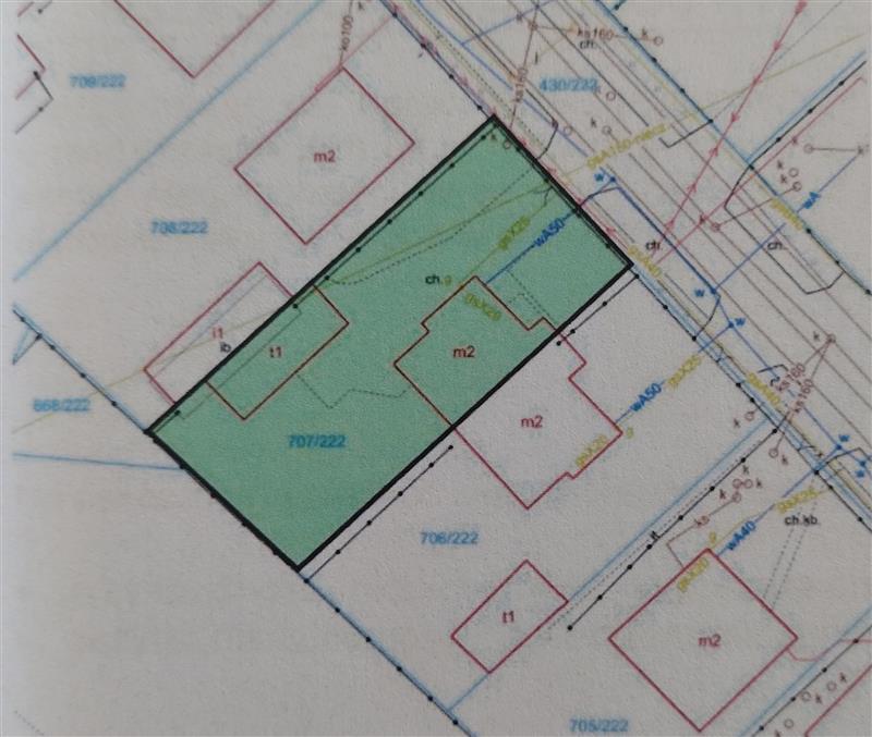
- nieruchomości położonej przy Jagodowa 10, 41-935 Bytom, dla której Sąd Rejonowy w Bytomiu Wydział Ksiąg Wieczystych (adres: ul. Piekarska 1, Bytom, 41-902 Bytom) prowadzi księgę wieczystą o numerze KA1Y/00021725/4.
Opis nieruchomości:
Nieruchomość gruntowa stanowiąca działkę nr 707/222 zabudowaną domem mieszkalnym jednorodzinnym oraz budynkiem garażu, położona w Bytomiu przy ul. Jagodowej 10. Nieruchomość posiada założoną księgę wieczystą w Sądzie Rejonowym w Bytomiu o numerze KA1Y/00021725/4. Budynek mieszkalny wzniesiony w zabudowie bliźniaczej, o dwóch kondygnacjach naziemnych w pełni podpiwniczony o powierzchni użytkowej 124,54 m2. Budynek garażu dwustanowiskowy o powierzchni zabudowy 50m2, jednokondygnacyjny. Nieruchomość gruntowa o regularnym kształcie prostokąta o powierzchni 576 m2. Dojazd do nieruchomości droga gminną ulicą Jagodową o powierzchni asfaltowej.
Suma oszacowania wynosi 688 200,00 zł, zaś cena wywołania jest równa 2/3 sumy oszacowania i wynosi 458 800,00 zł.
W ciągu dwóch tygodni przed licytacją wolno oglądać wyżej wymienioną nieruchomość w dni powszednie od godz. 10:00 do godz. 10:30. W systemie teleinformatycznym udostępnia się natomiast protokół opisu i oszacowania.
Licytant przystępujący do przetargu powinien złożyć rękojmię w wysokości jednej dziesiątej sumy oszacowania, to jest kwotę 68 820,00 zł.
Rękojmię należy złożyć na rachunek bankowy komornika 66 1050 1911 1000 0090 6969 4520 najpóźniej na 2 dni robocze przed rozpoczęciem przetargu.
Przetarg odbywa się w trybie sprzedaży nieruchomości w drodze licytacji elektronicznej i rozpocznie się w dniu: 16.04.2026 o godzinie: 12.00 a zakończy się w dniu 23.04.2026 o godzinie: 12.00. Na podstawie art. 9867 § 31 kpc, jeżeli w ciągu 5 minut przed planowanym terminem zakończenia przetargu zgłoszono postąpienie, termin ten ulega odroczeniu o 5 minut. Jeżeli w dodatkowym czasie zgłoszono dalsze postąpienie, termin zakończenia przetargu podlega każdorazowo odroczeniu o kolejne 5 minut, aż do momentu gdy ustaną postąpienia.
Sprzedaż dokonywana jest w drodze licytacji elektronicznej. Uczestnictwo w przetargu wymaga założenia konta w systemie teleinformatycznym obsługującym licytacje elektroniczne dostępnym pod adresem https://elicytacje.komornik.pl/ oraz przystąpienia do przetargu na dwa dni robocze przed jego rozpoczęciem. Licytant składa rękojmię najpóźniej na 2 dni robocze przed rozpoczęciem przetargu, a jeżeli bierze udział w licytacji jako pełnomocnik innej osoby, to przedkłada dodatkowo swoje umocowanie. Udział jednego licytanta wystarcza do odbycia przetargu.
Na podstawie art. 9864 § 2 kpc warunkiem udziału w przetargu jest utworzenie indywidualnego konta w systemie teleinformatycznym.
Prawa osób trzecich nie będą przeszkodą do przeprowadzenia licytacji i przybicia na rzecz nabywcy bez zastrzeżeń, jeżeli osoby te przed rozpoczęciem przetargu nie złożą dowodu, że wniosły powództwo o zwolnienie przedmiotów od egzekucji i uzyskały w tym zakresie orzeczenie wstrzymujące egzekucję.
Użytkowanie, służebności i prawa dożywotnika, jeżeli nie są ujawnione w księdze wieczystej lub przez złożenie dokumentu do zbioru dokumentów i nie zostaną zgłoszone najpóźniej na trzy dni przed rozpoczęciem licytacji, nie będą uwzględnione w dalszym toku egzekucji i wygasną z chwilą uprawomocnienia się postanowienia o przysądzeniu własności.
Zgodnie z art. 976 kpc, w przetargu nie mogą uczestniczyć: dłużnik, komornik, ich małżonkowie, dzieci, rodzice i rodzeństwo oraz osoby obecne na licytacji w charakterze urzędowym, licytant, który nie wykonał warunków poprzedniej licytacji, osoby, które mogą nabyć nieruchomość tylko za zezwoleniem organu państwowego, a zezwolenia tego nie przedstawiły.
Komornik Sądowy
Filip Probierz


